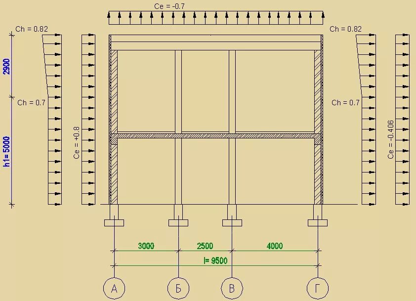
Нагрузки на каркас