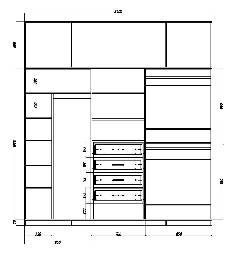
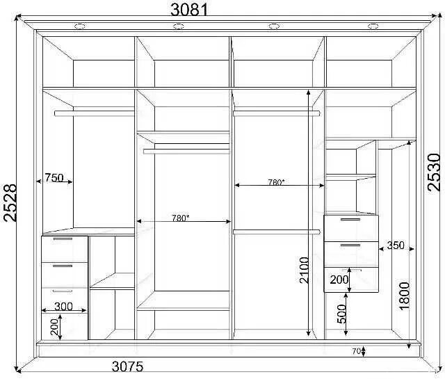
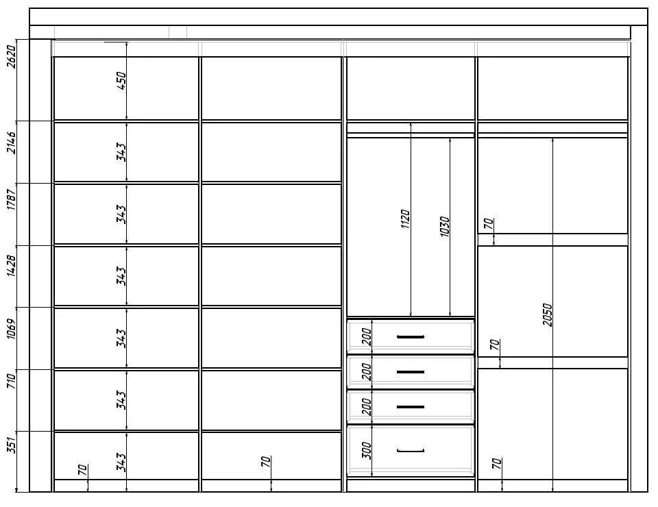
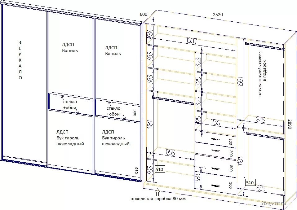
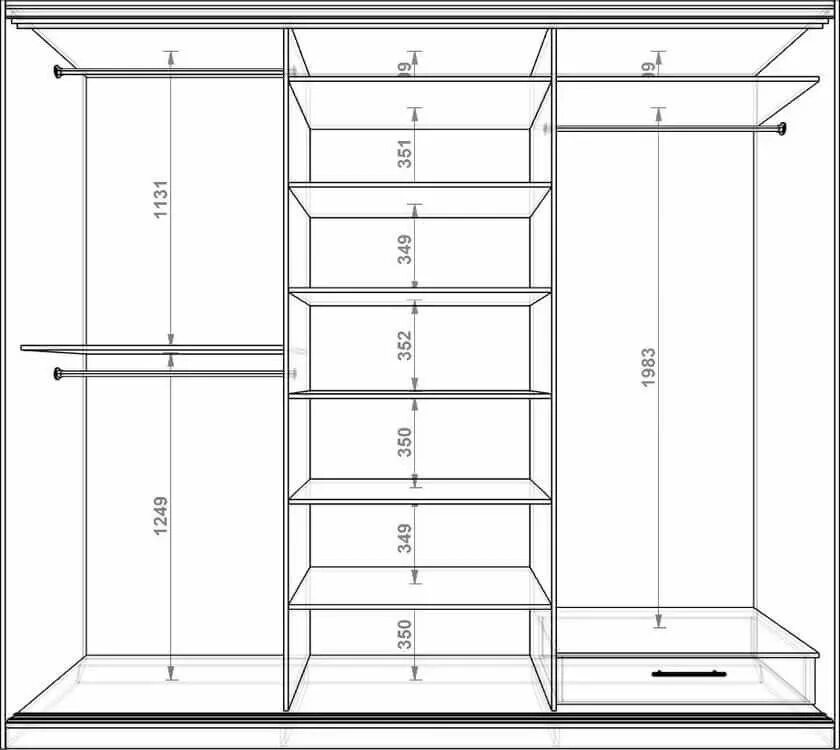
Наполнение шкафа схема