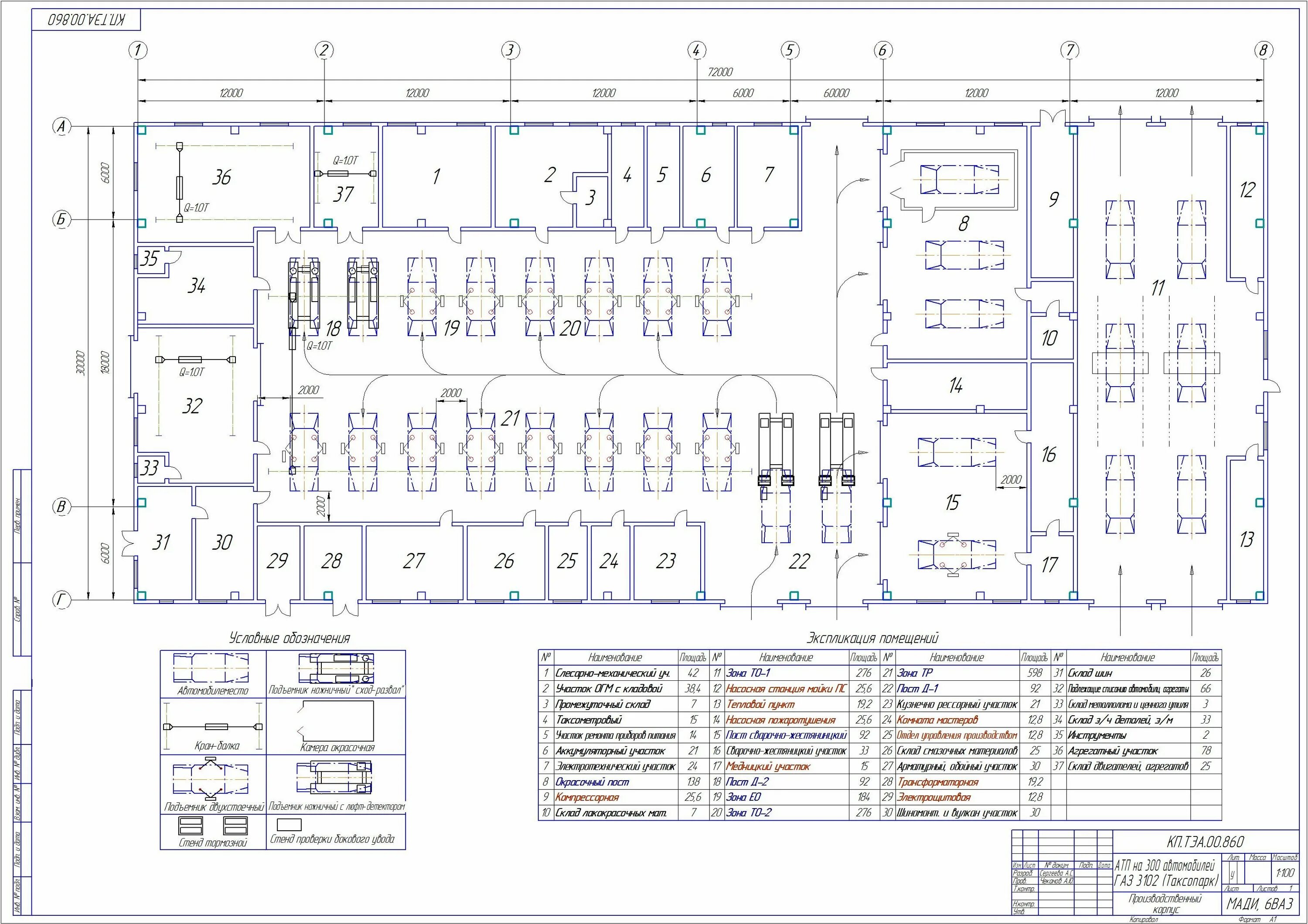
Норматив автотранспортного предприятия