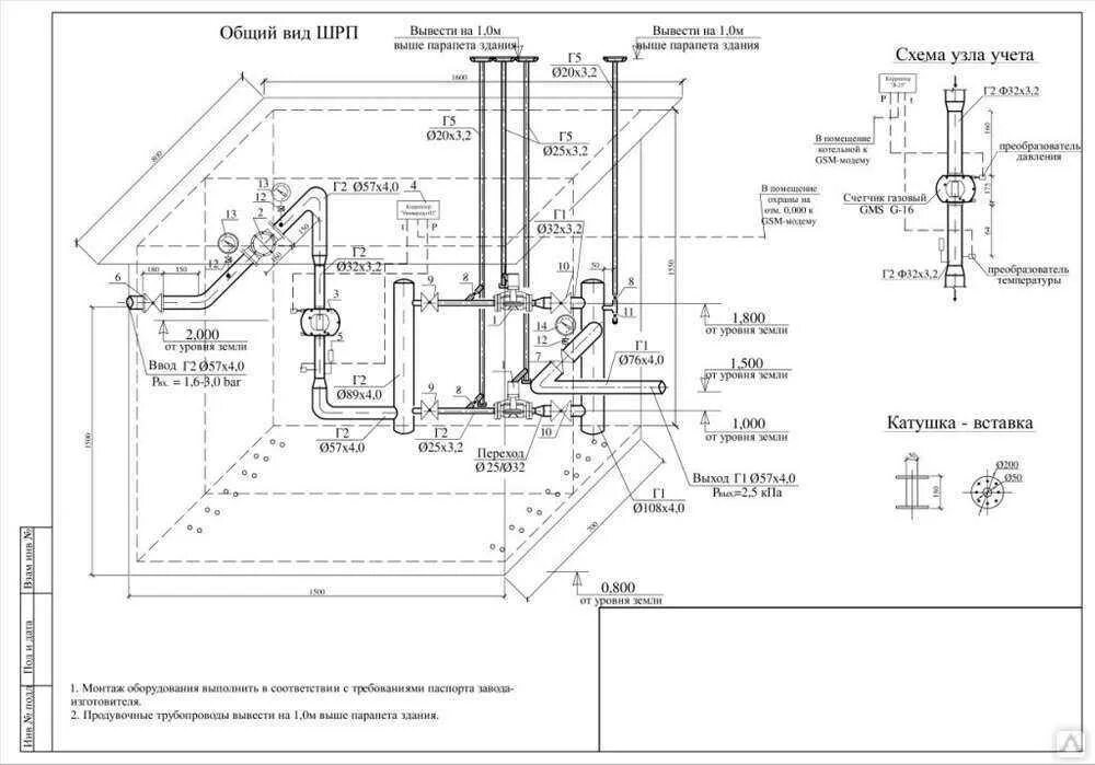
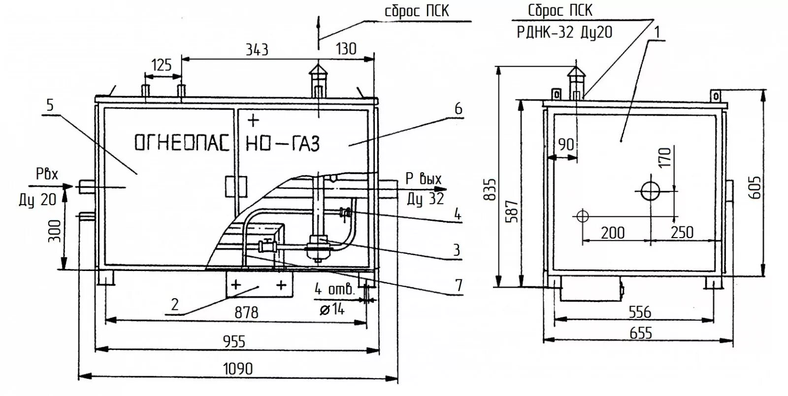
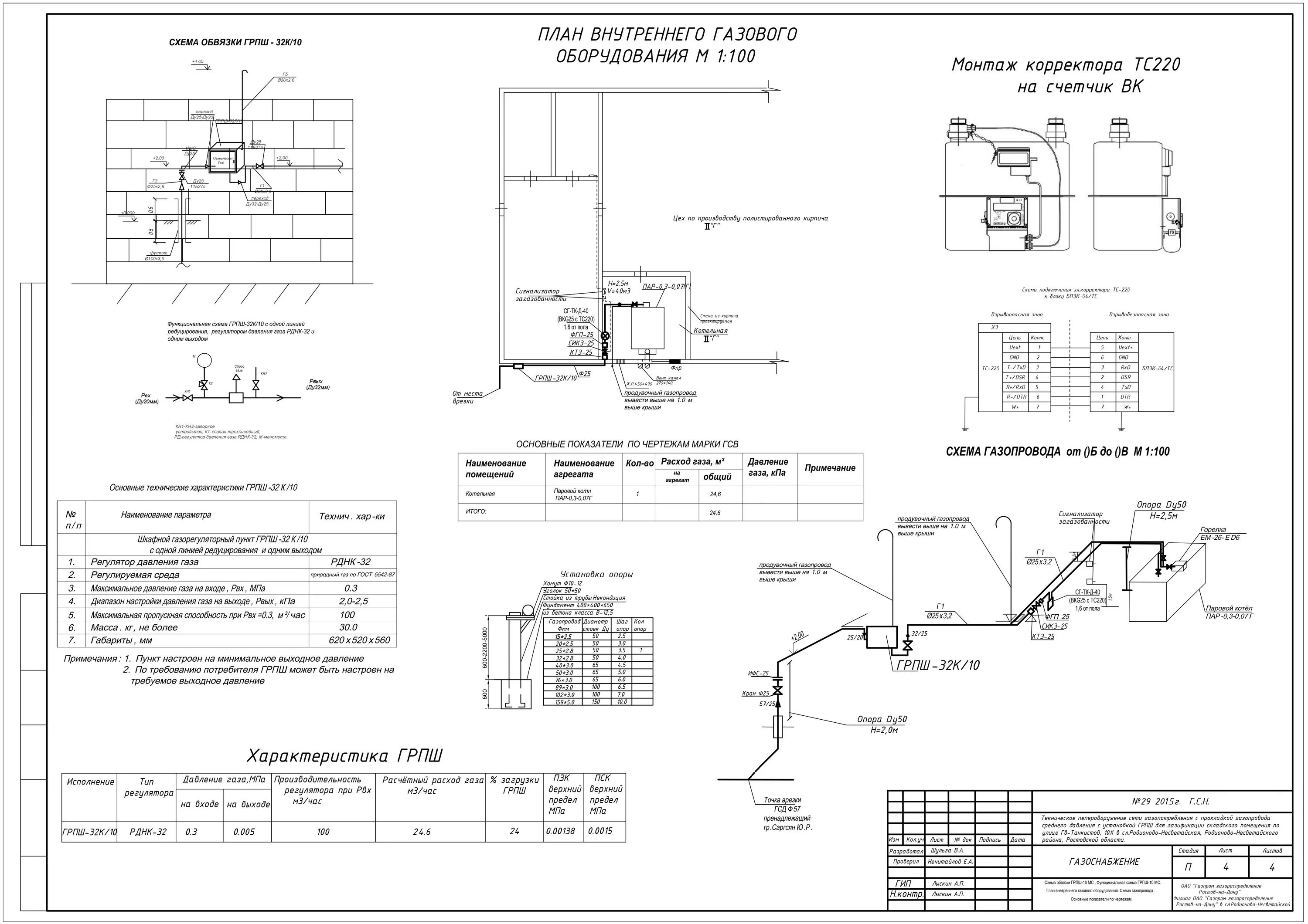
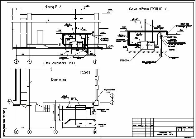
Нормы установки шрп