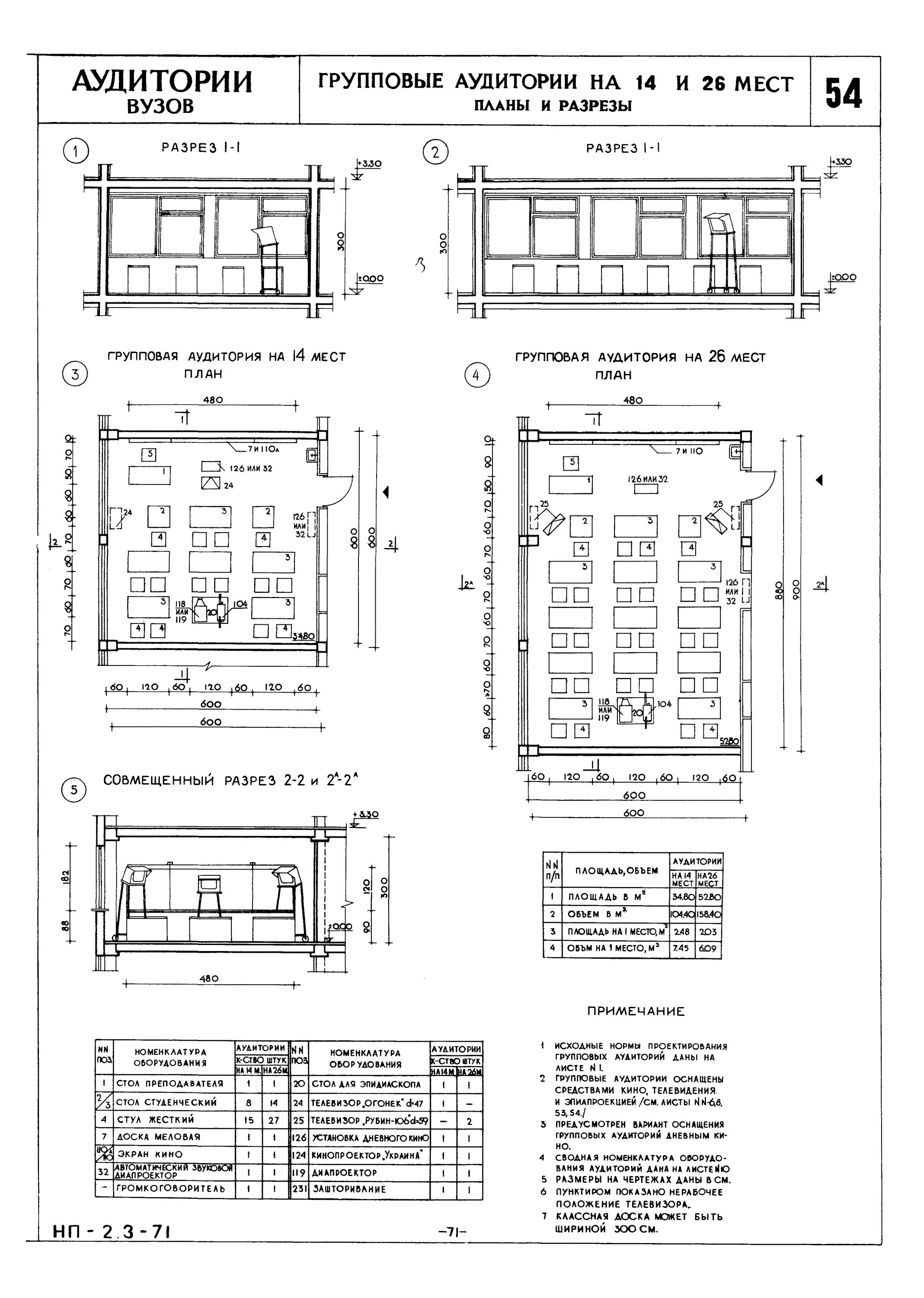
Объем аудитории