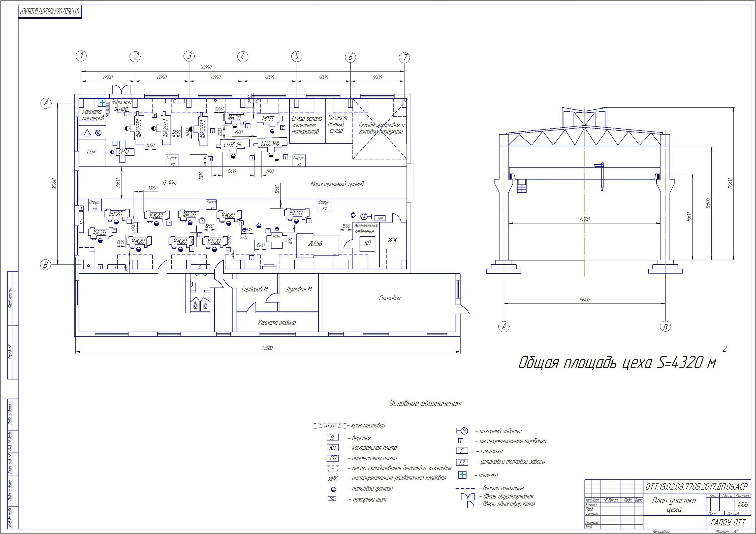
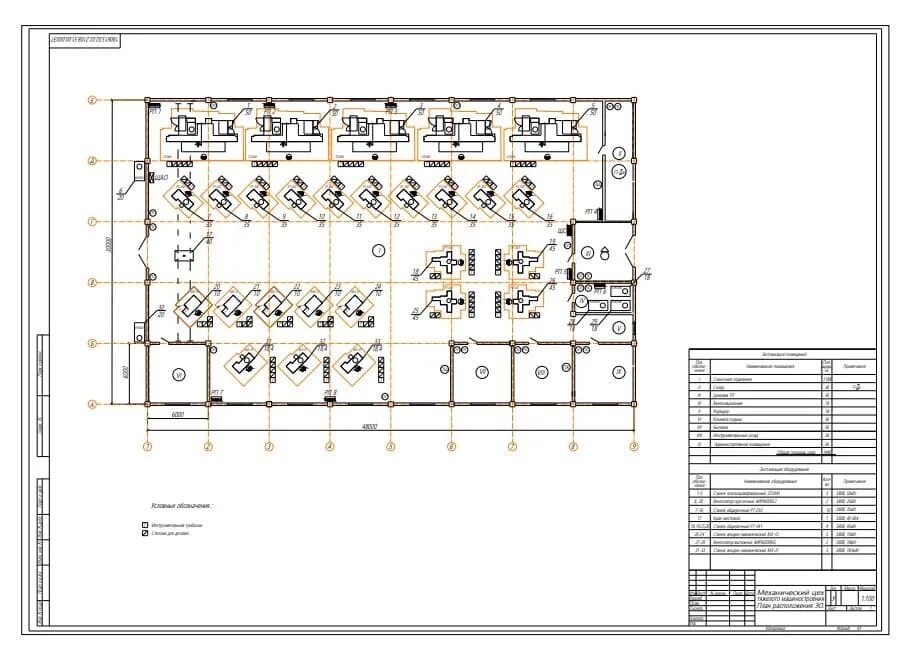
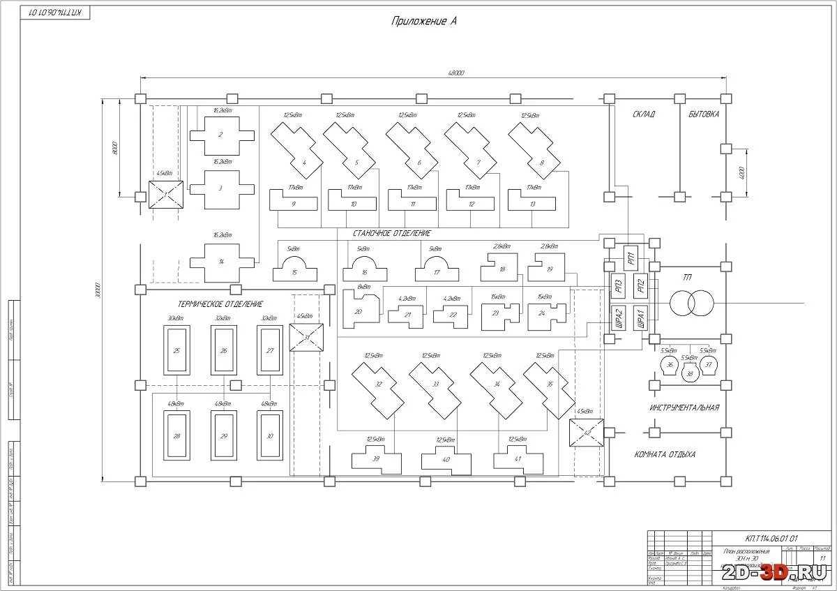
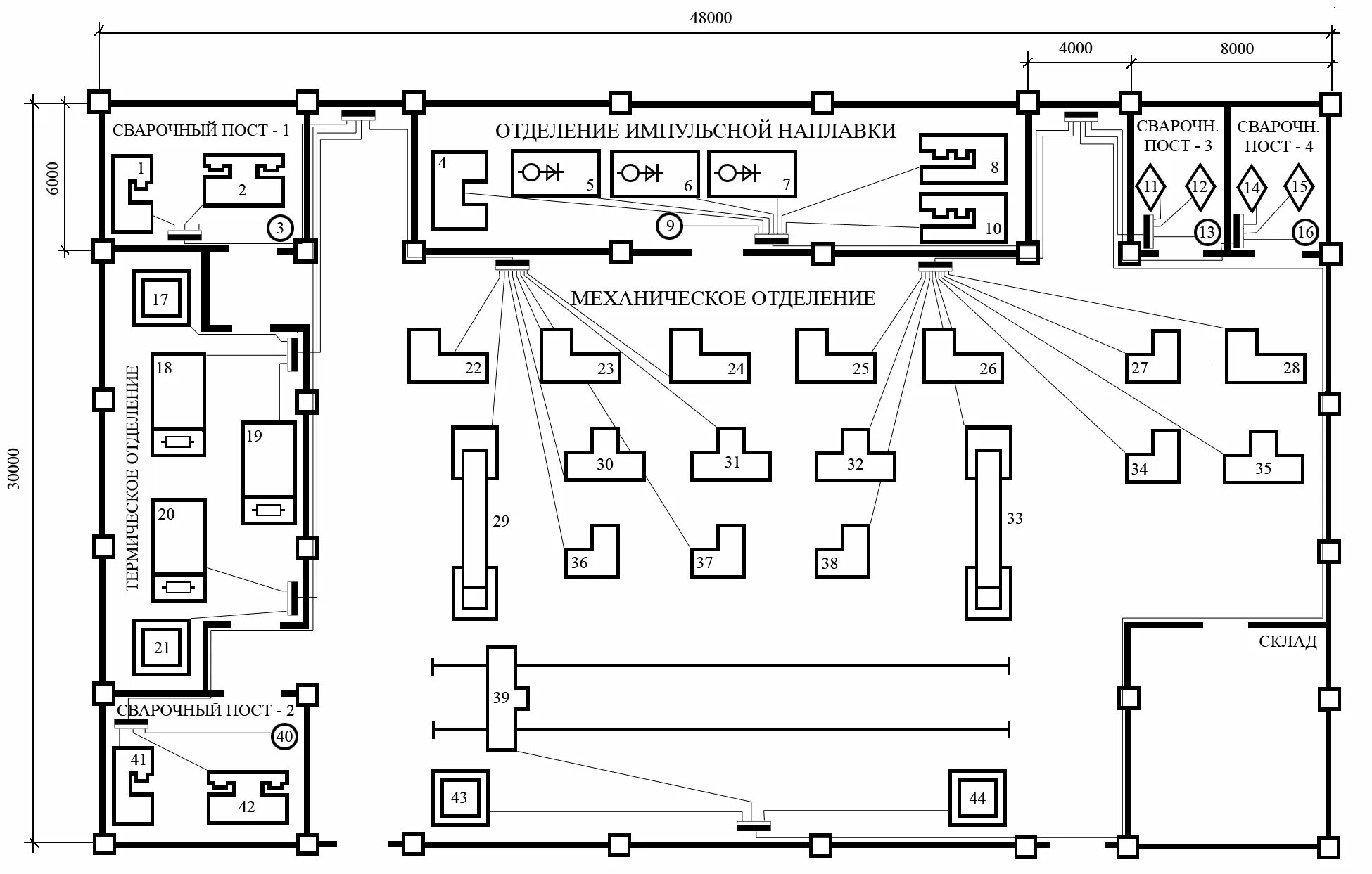
Оборудование производственного участка цеха