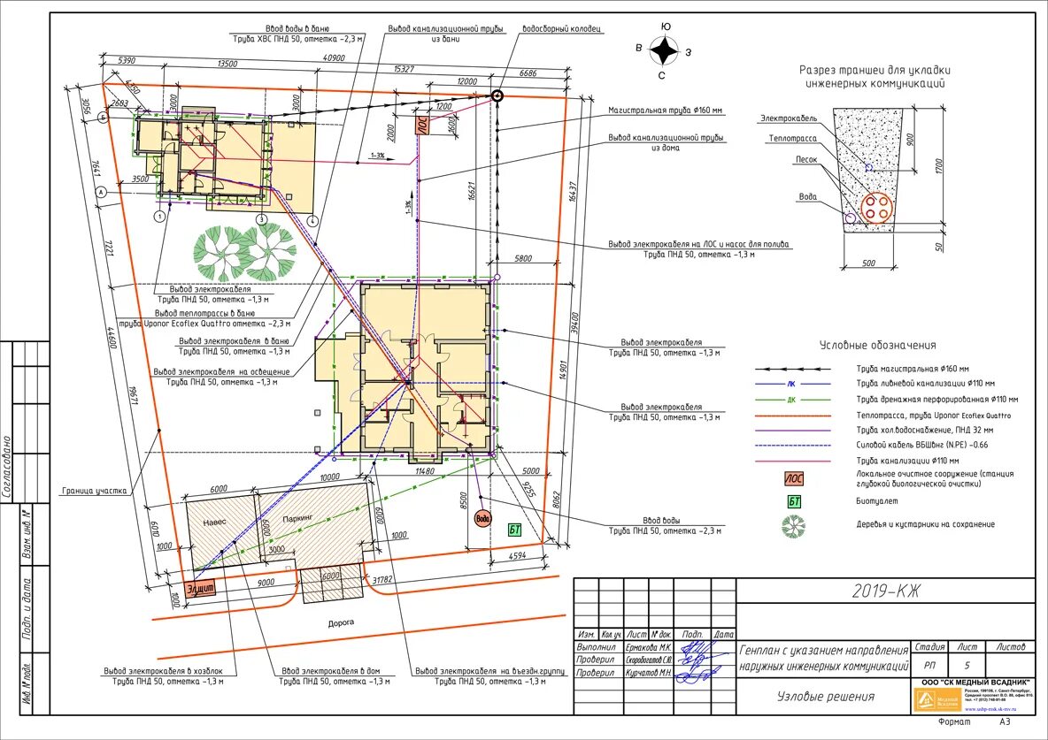
Обозначение инженерных сетей