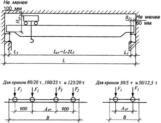
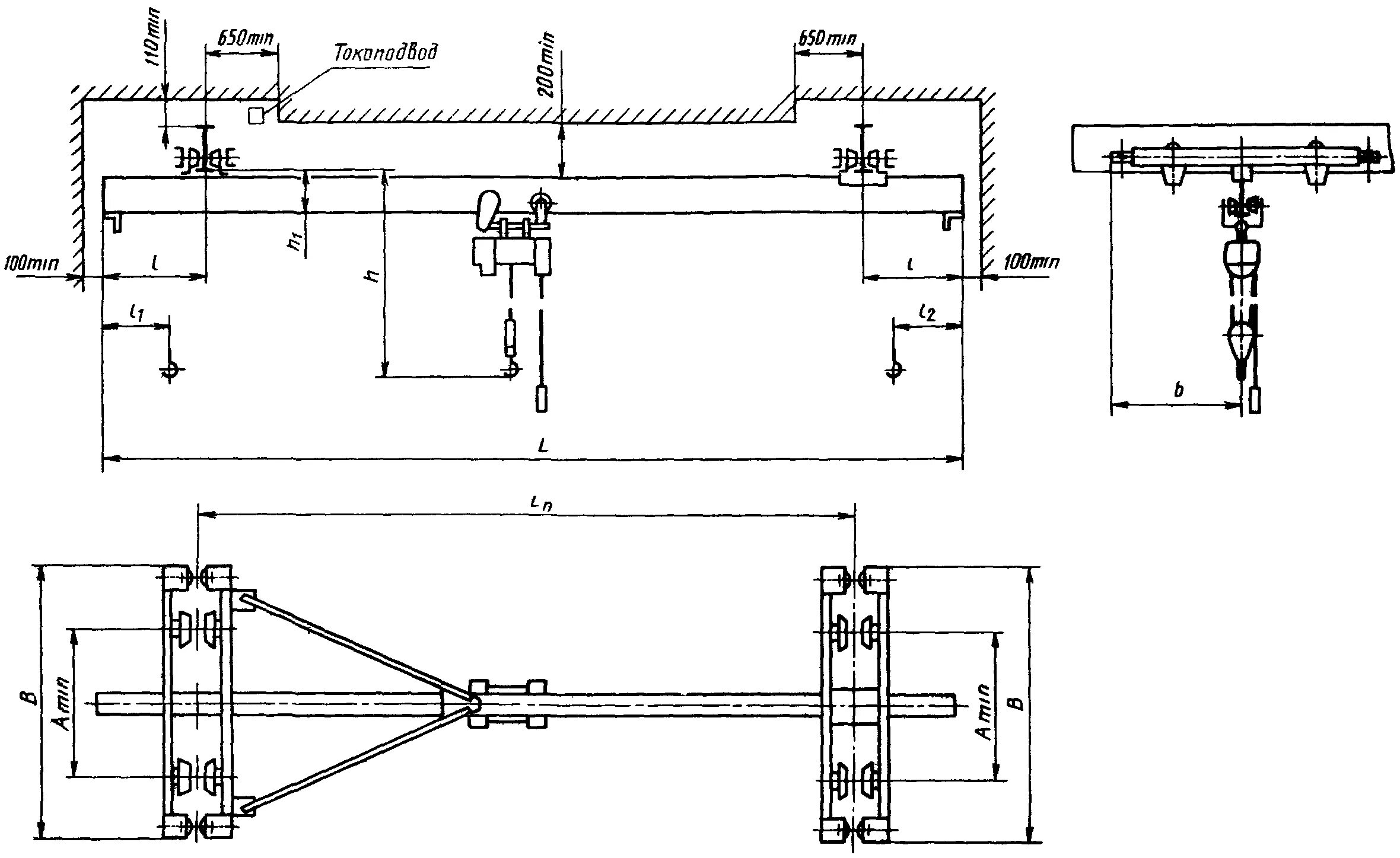
Обозначение мостового крана