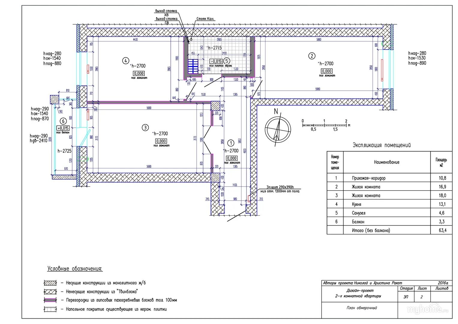
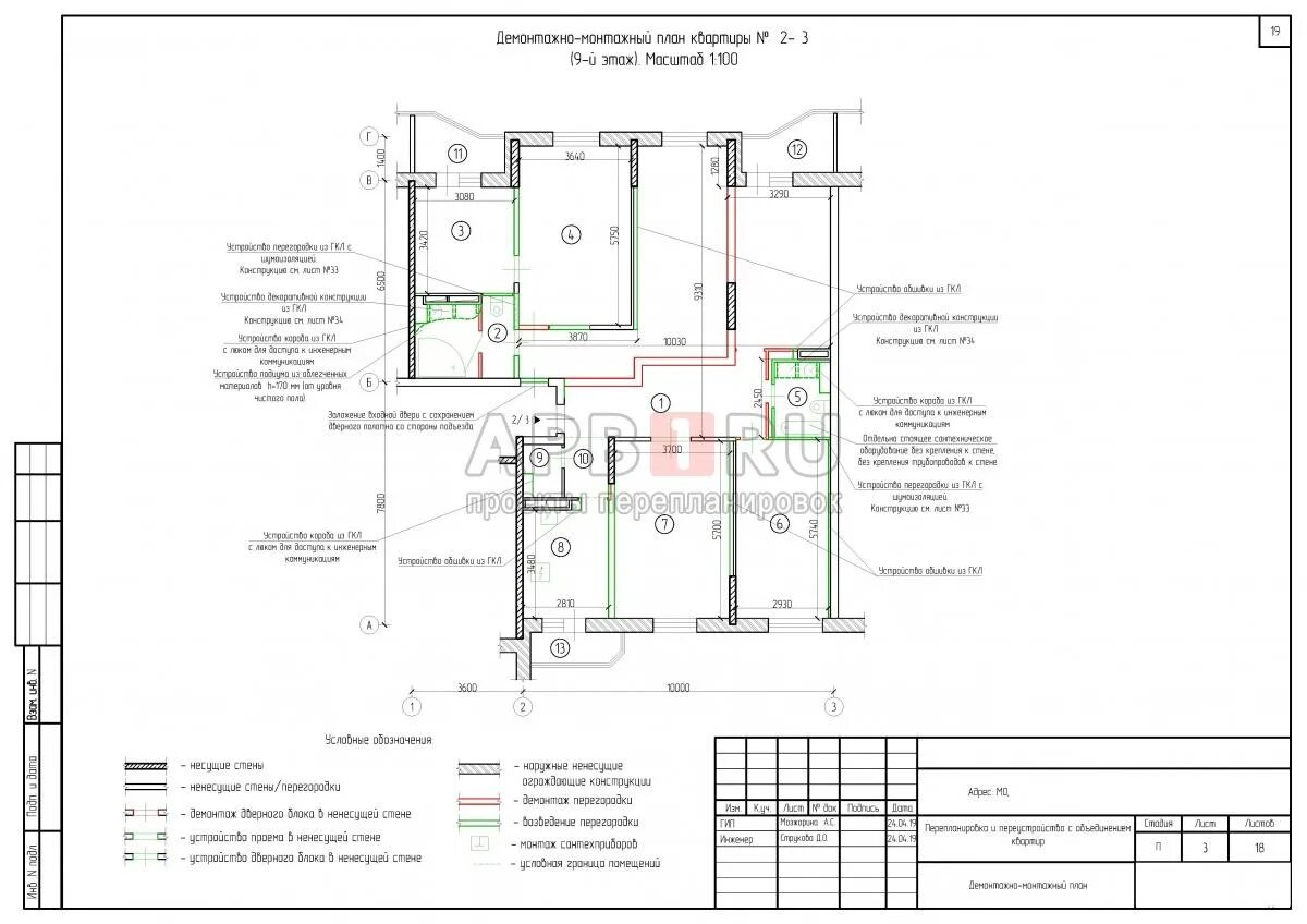
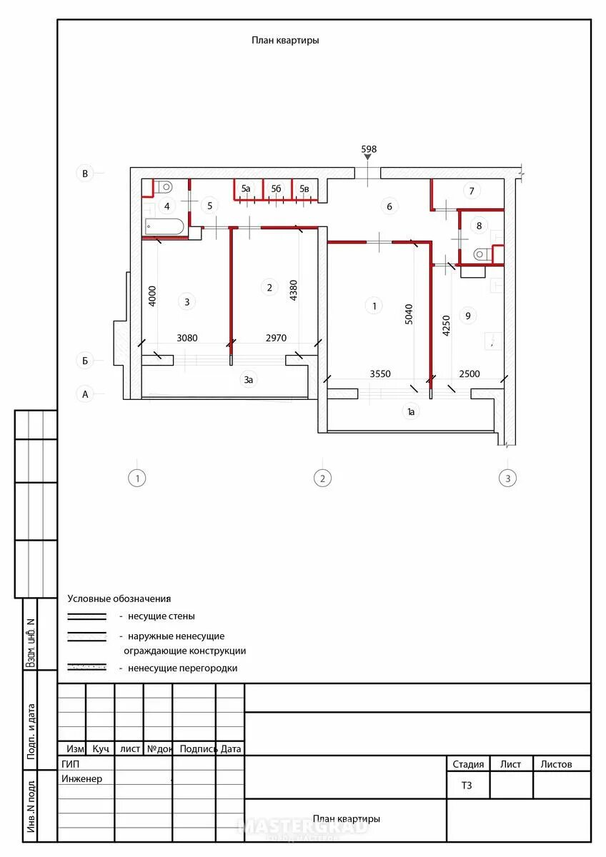
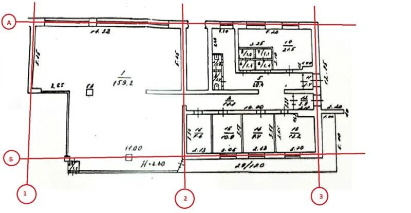
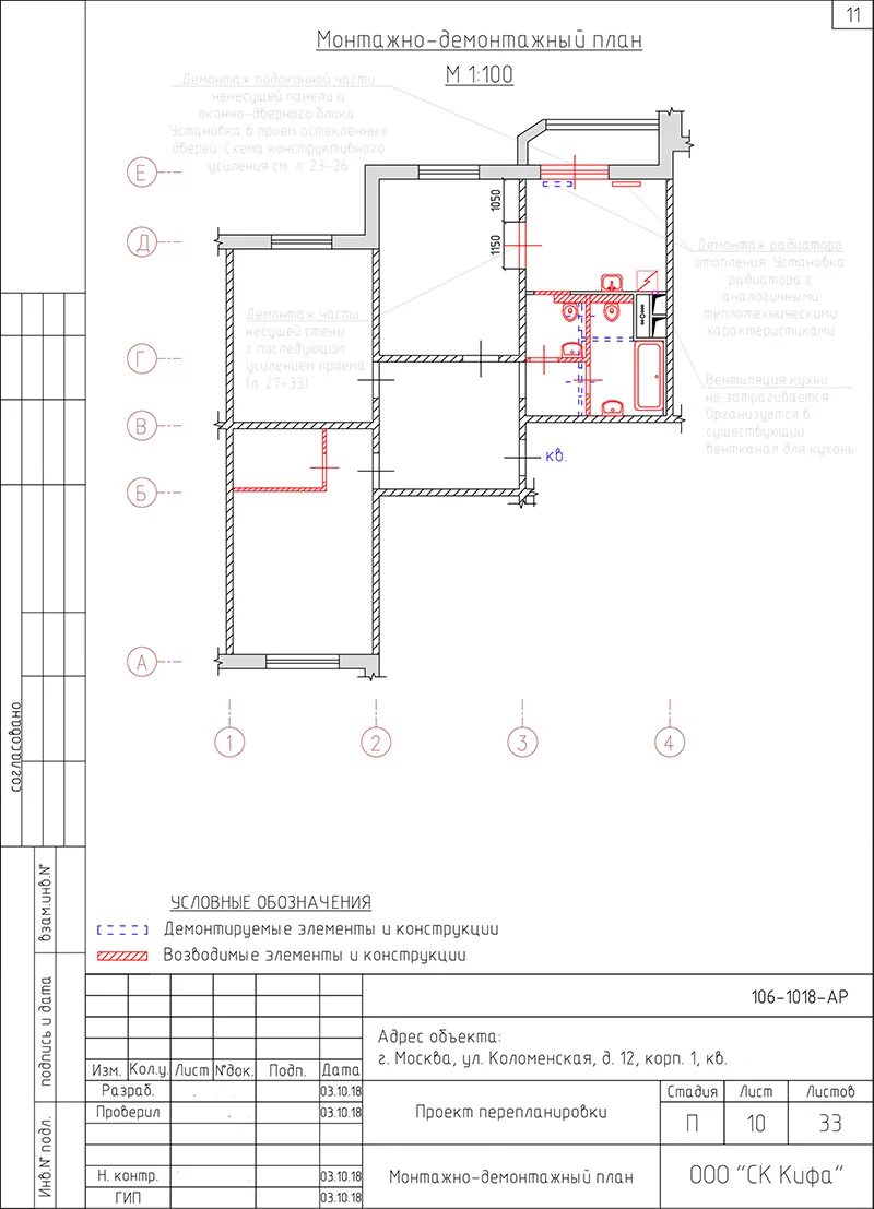
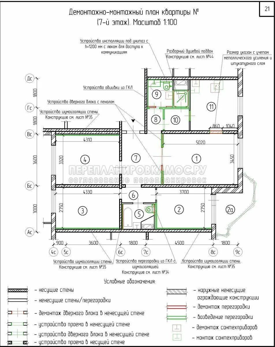
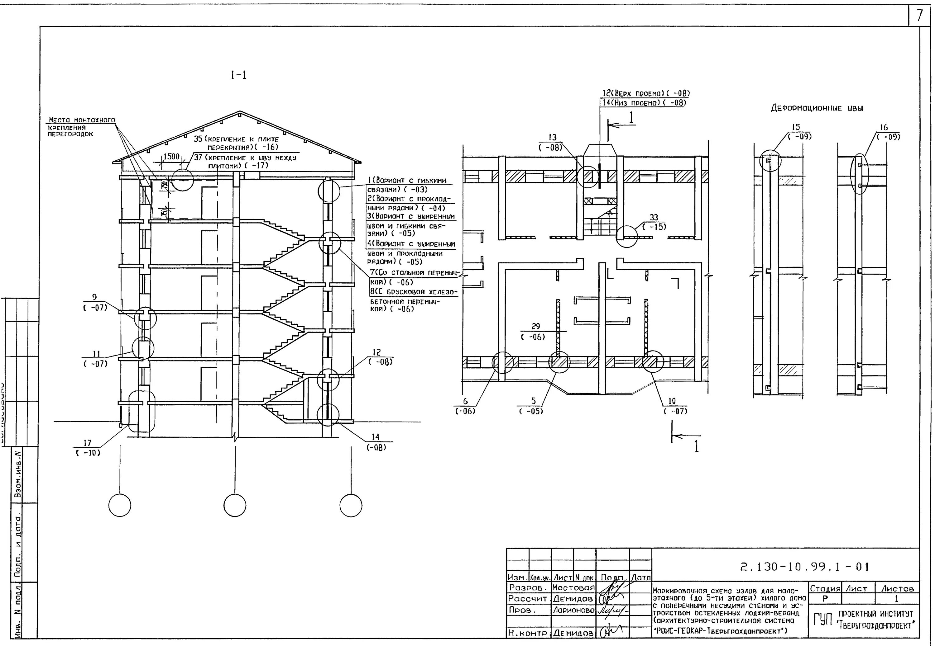
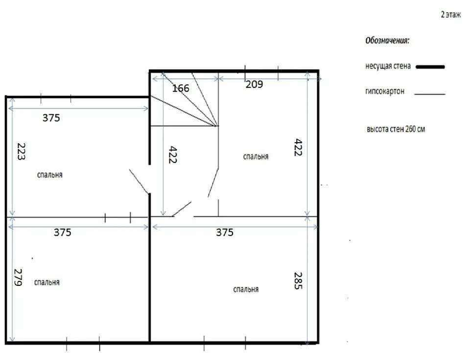
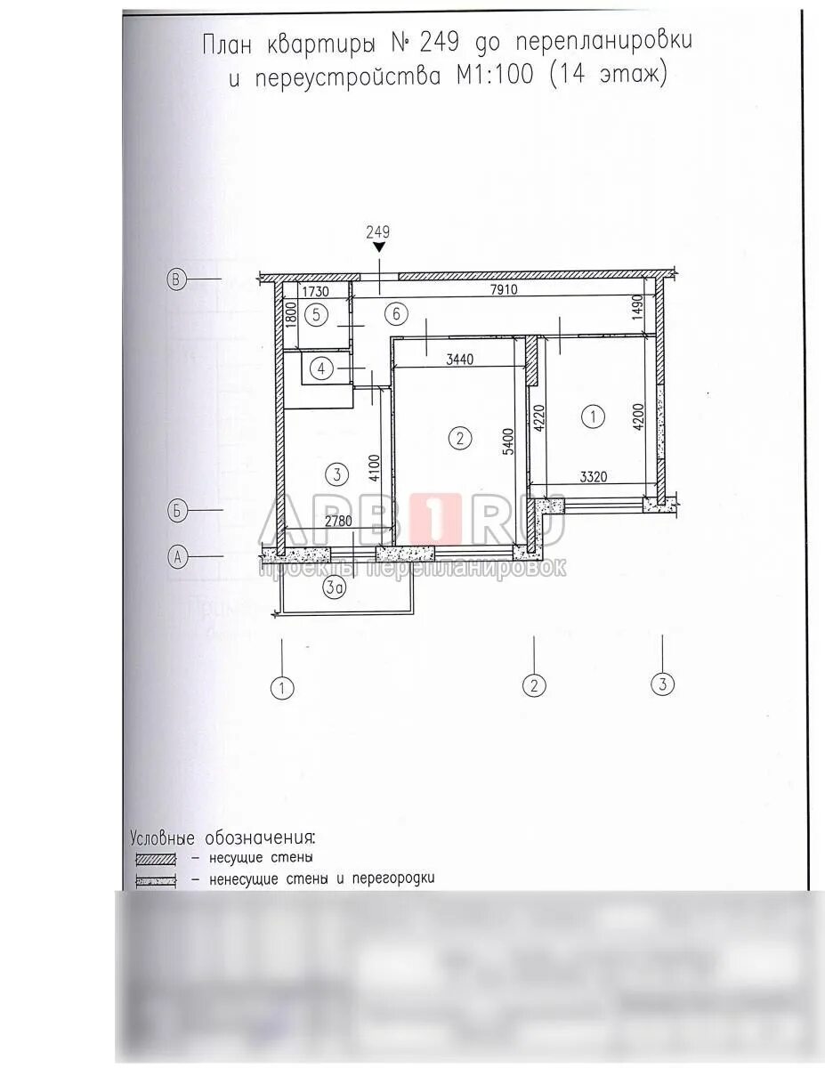
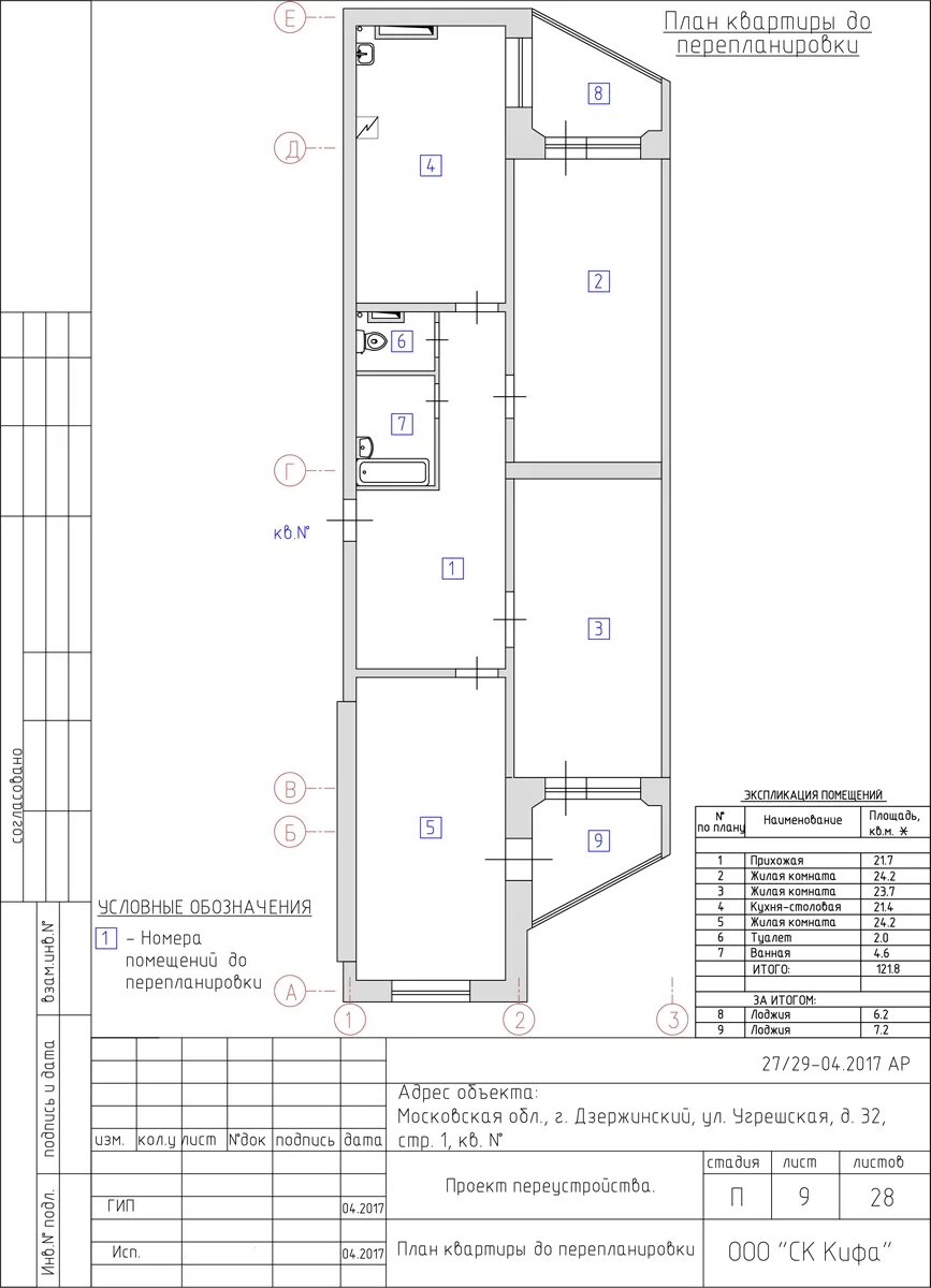
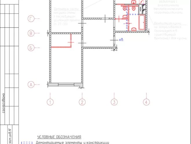
Обозначение несущей стены