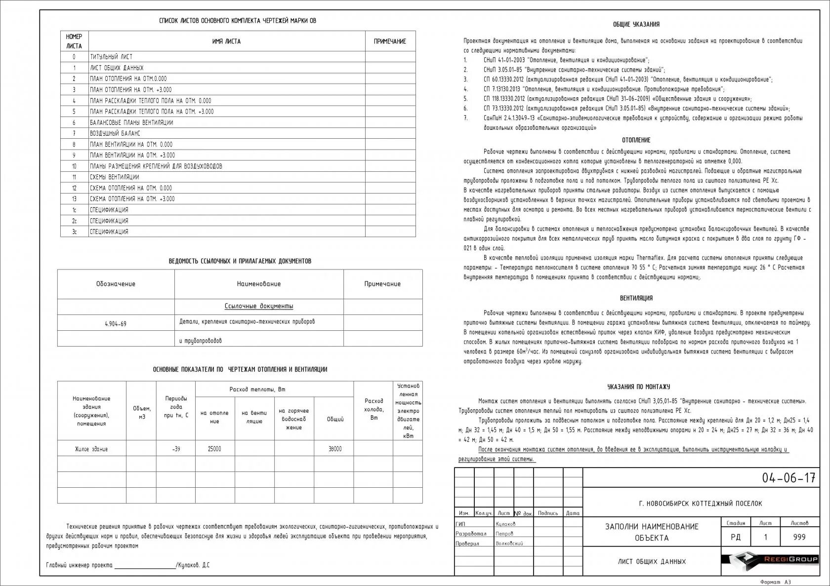
Общие данные формат