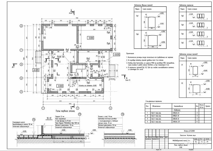
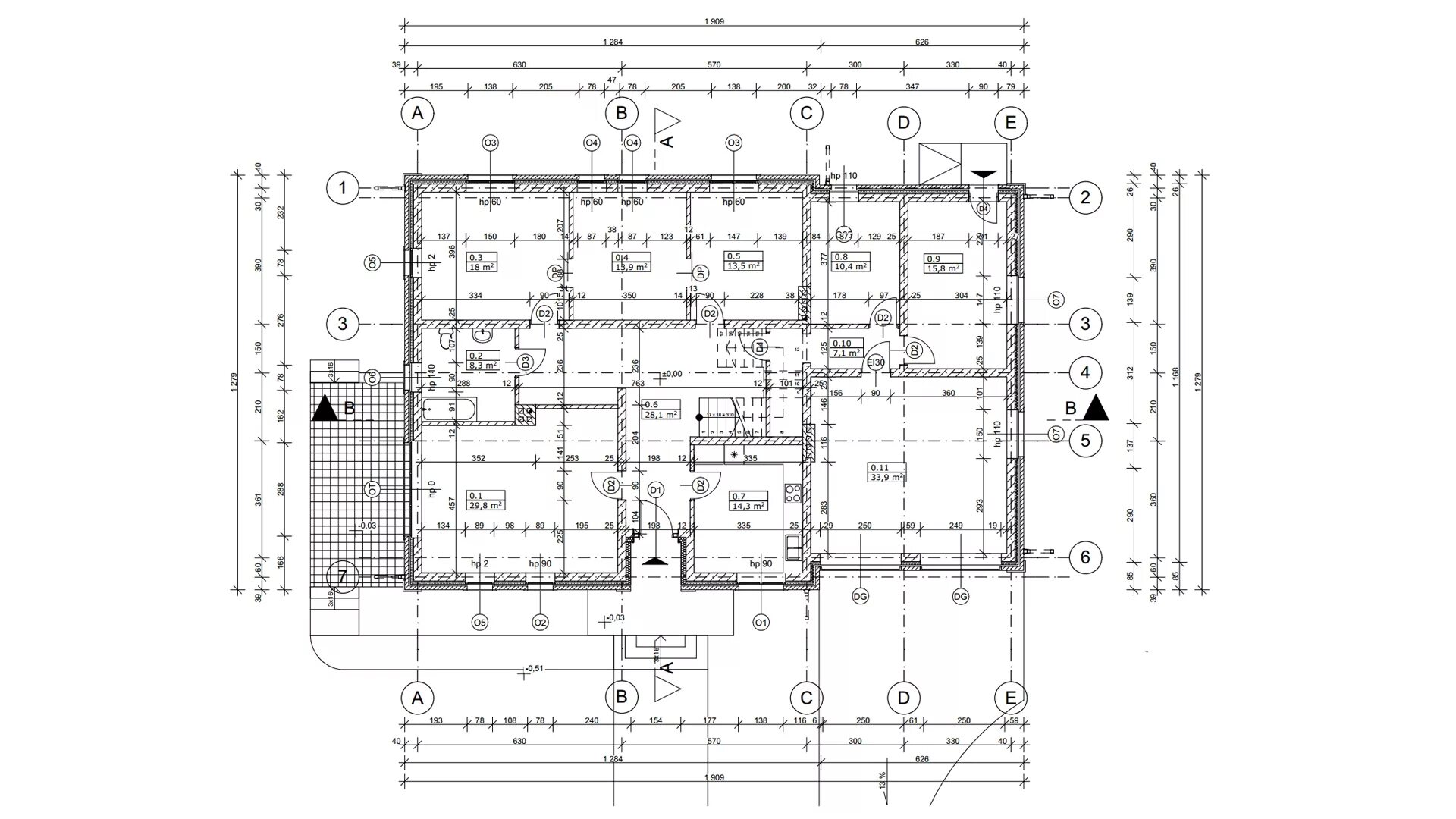
Оформление планов зданий