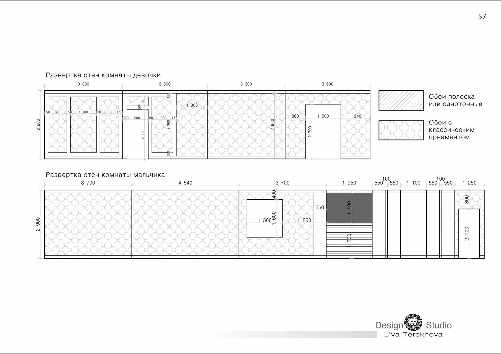
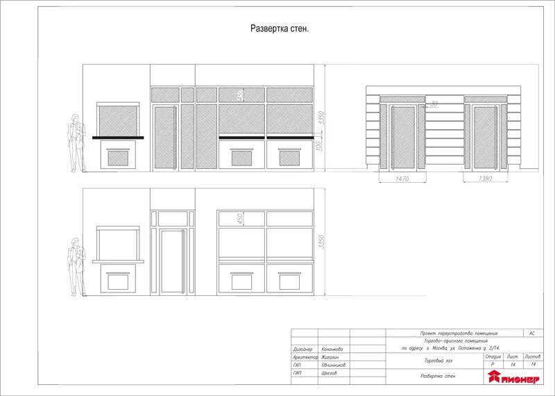
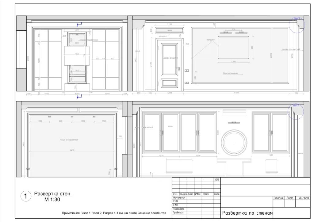
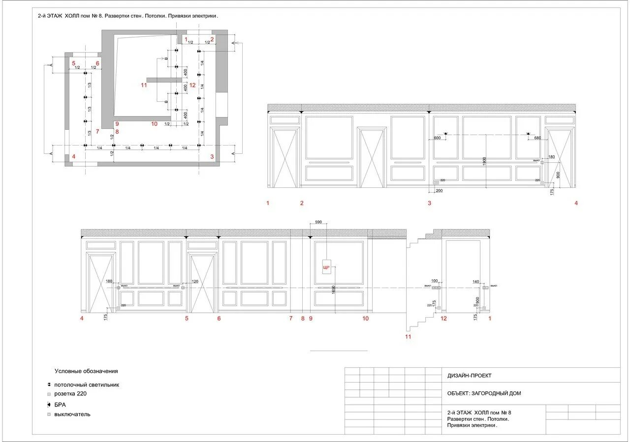
Оформление развертки