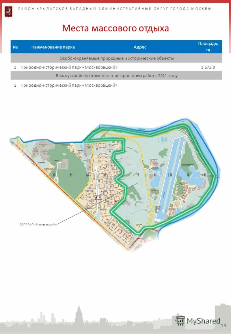
Оопт пип