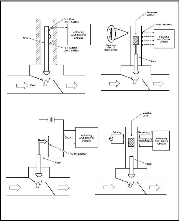
Open limits