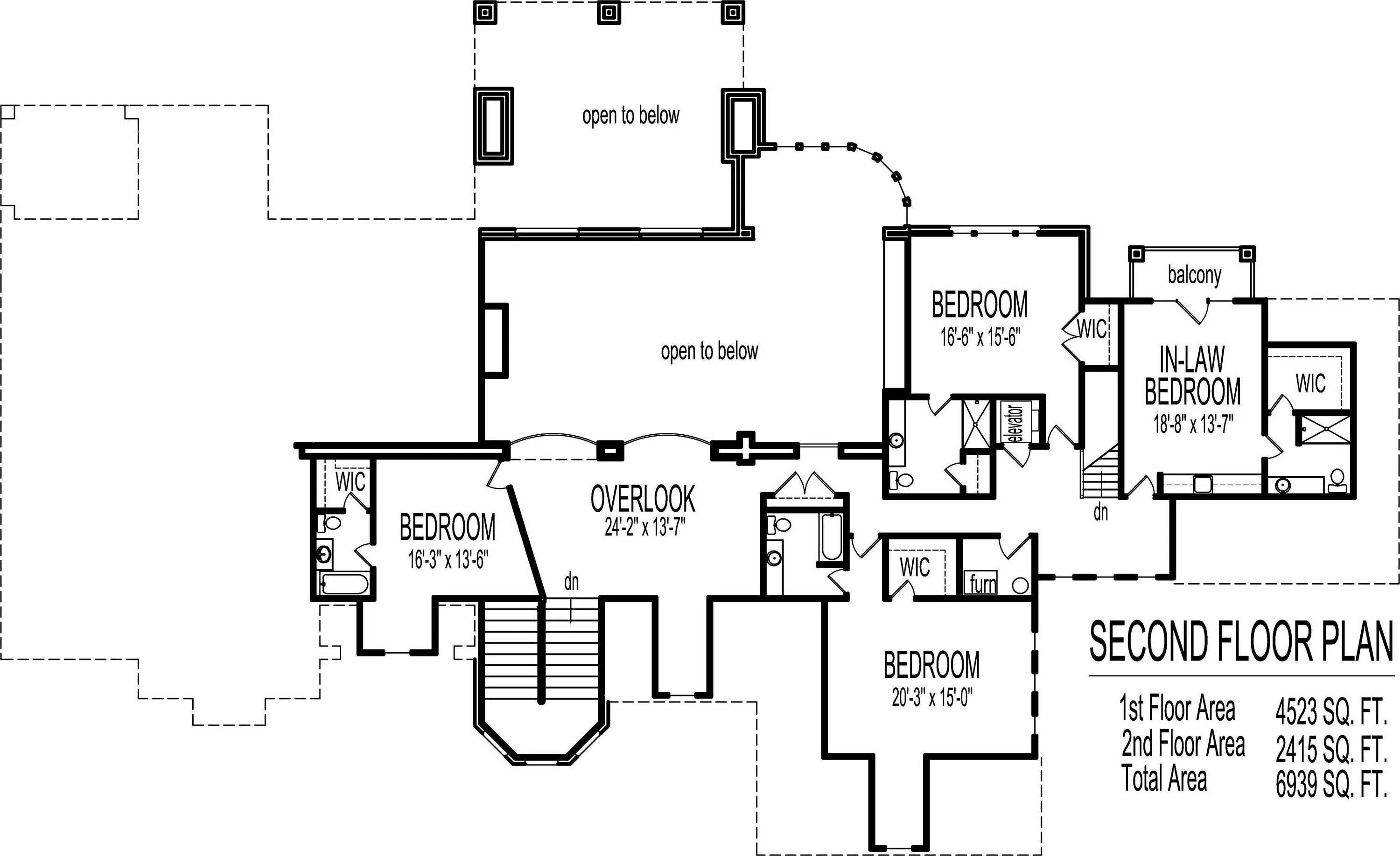
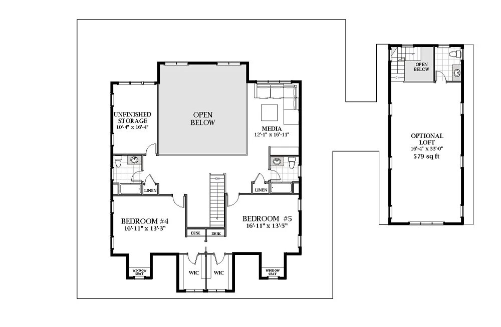
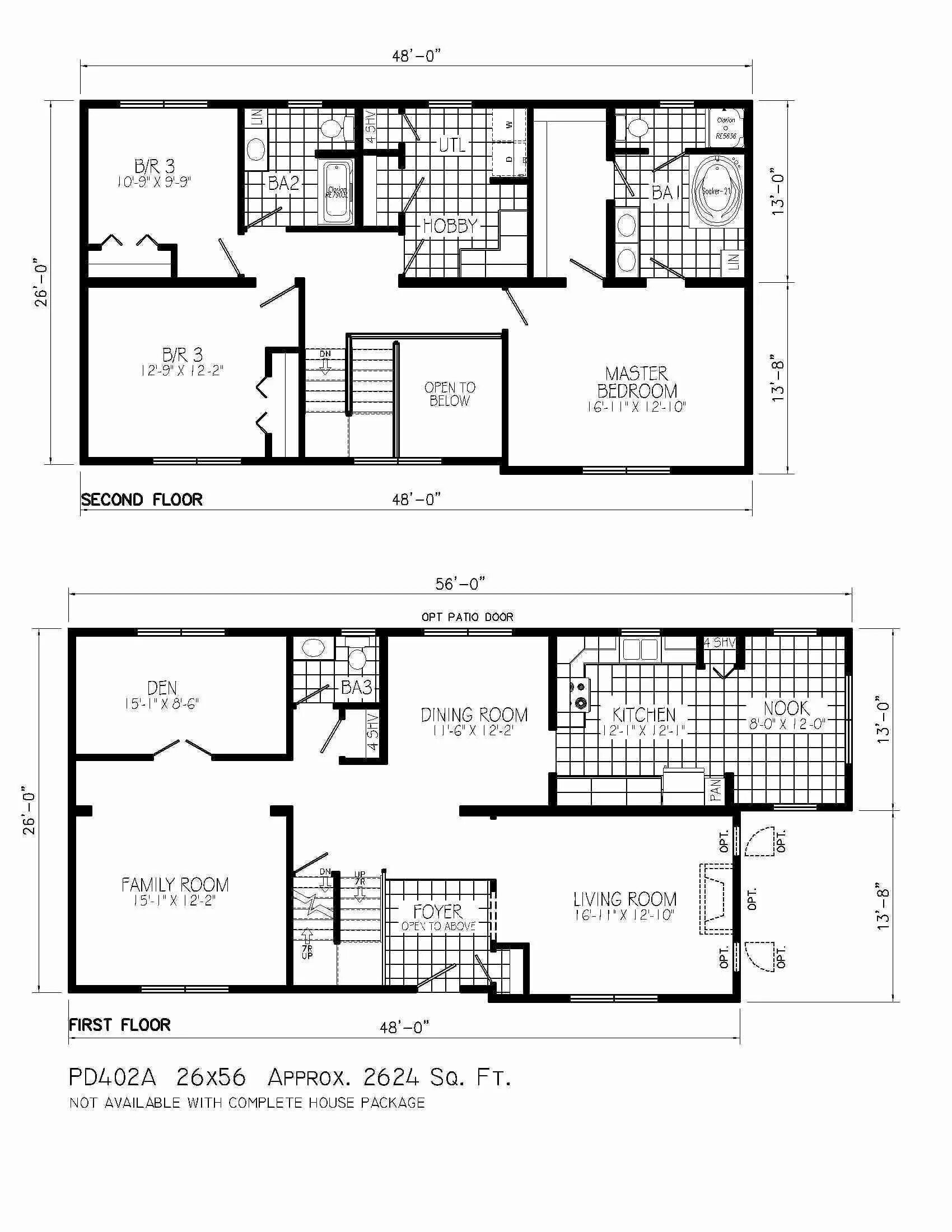
Open to below