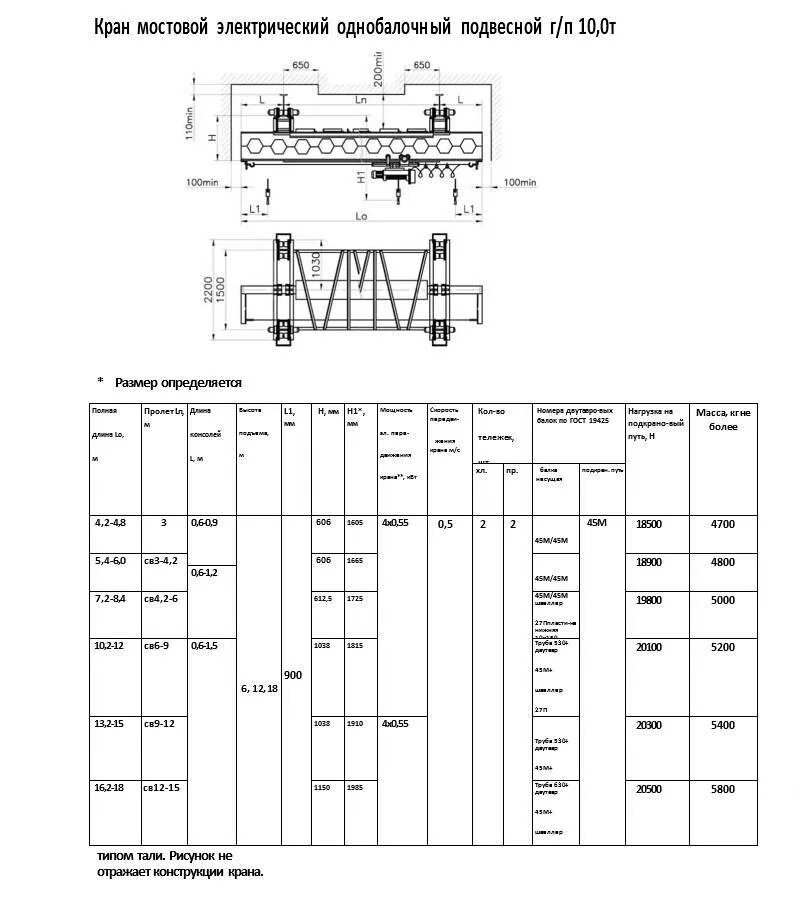
Определение мостового крана