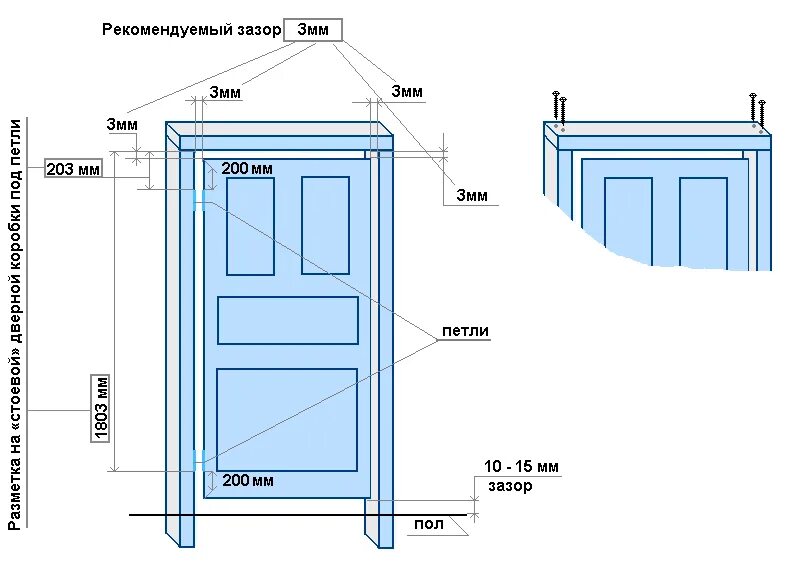
Оптимальный зазор