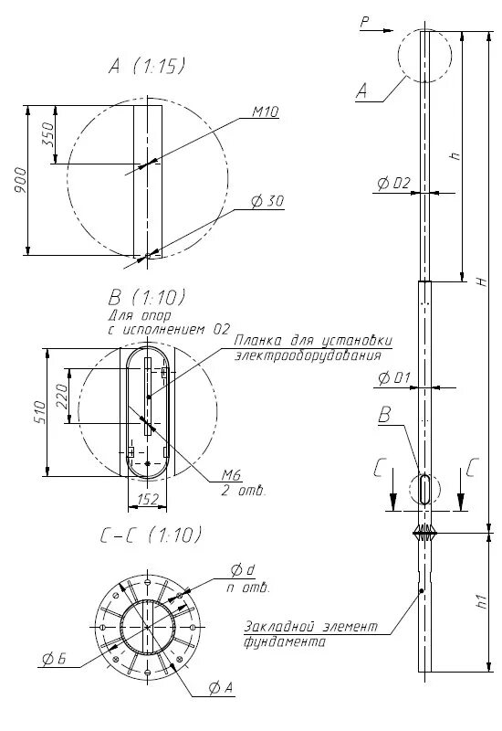
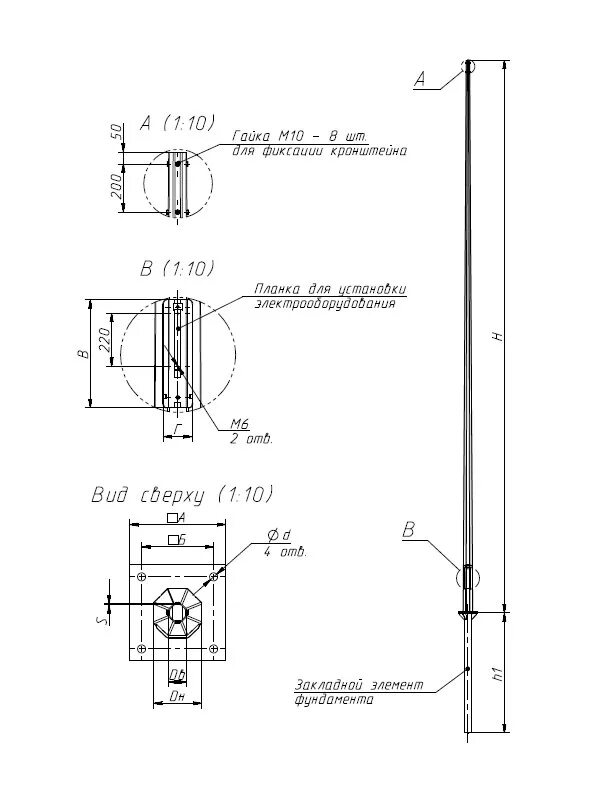
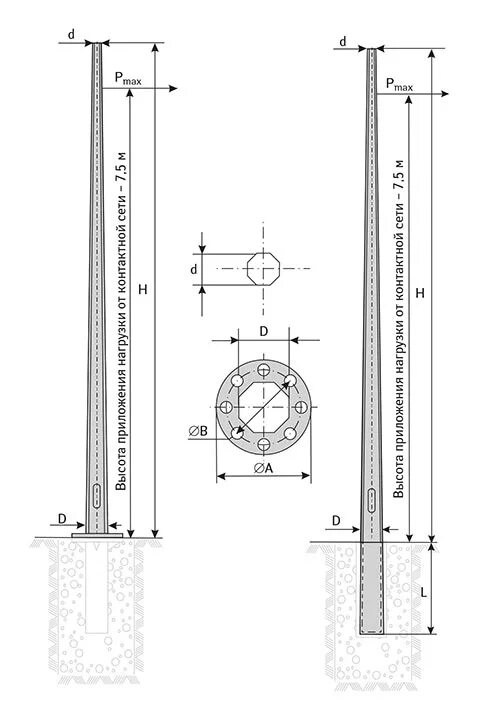
Ос 0 4