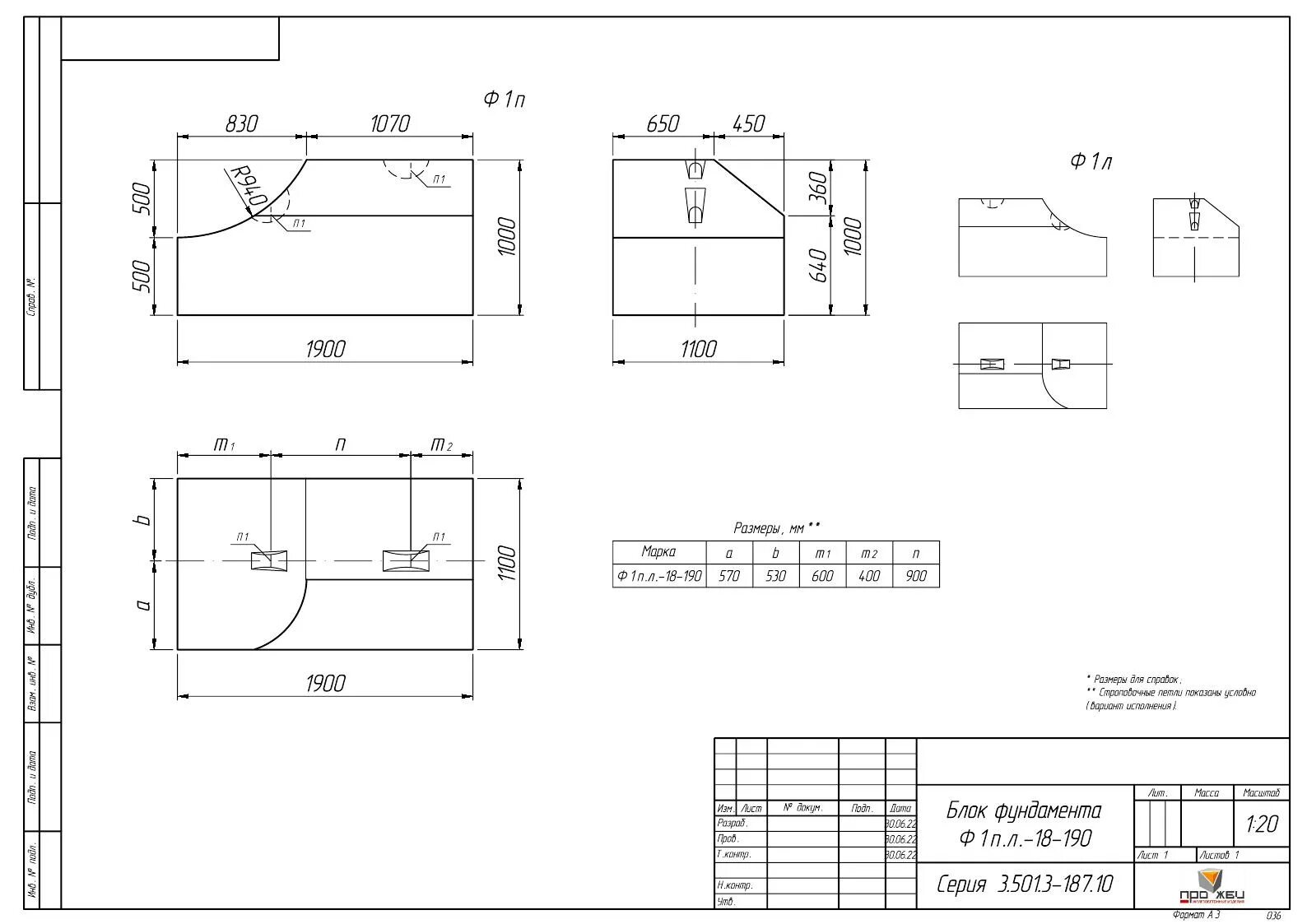
П 01 01 2018