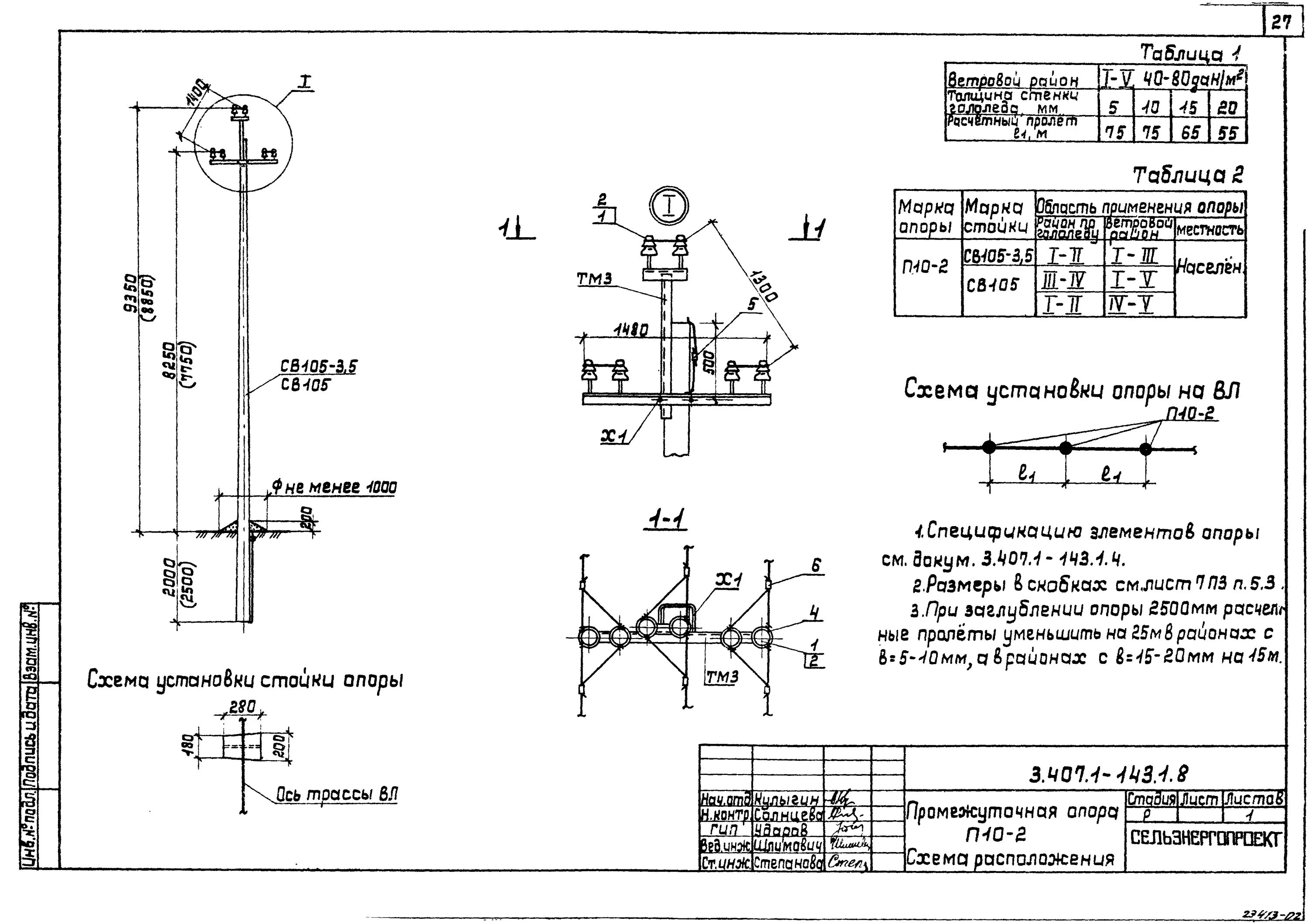
П 10 2