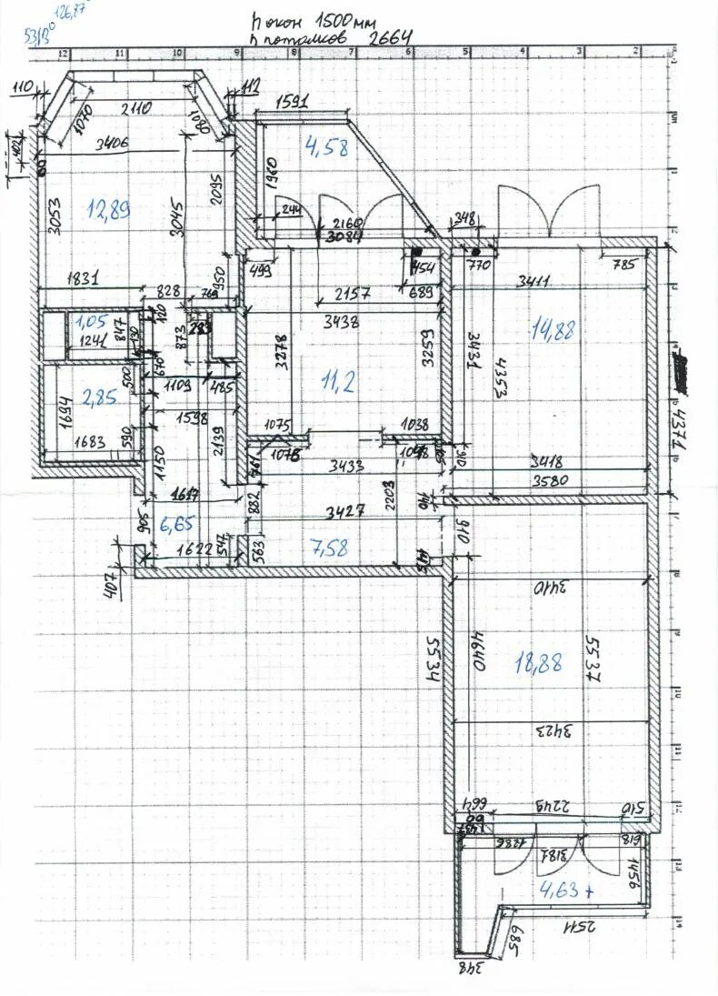
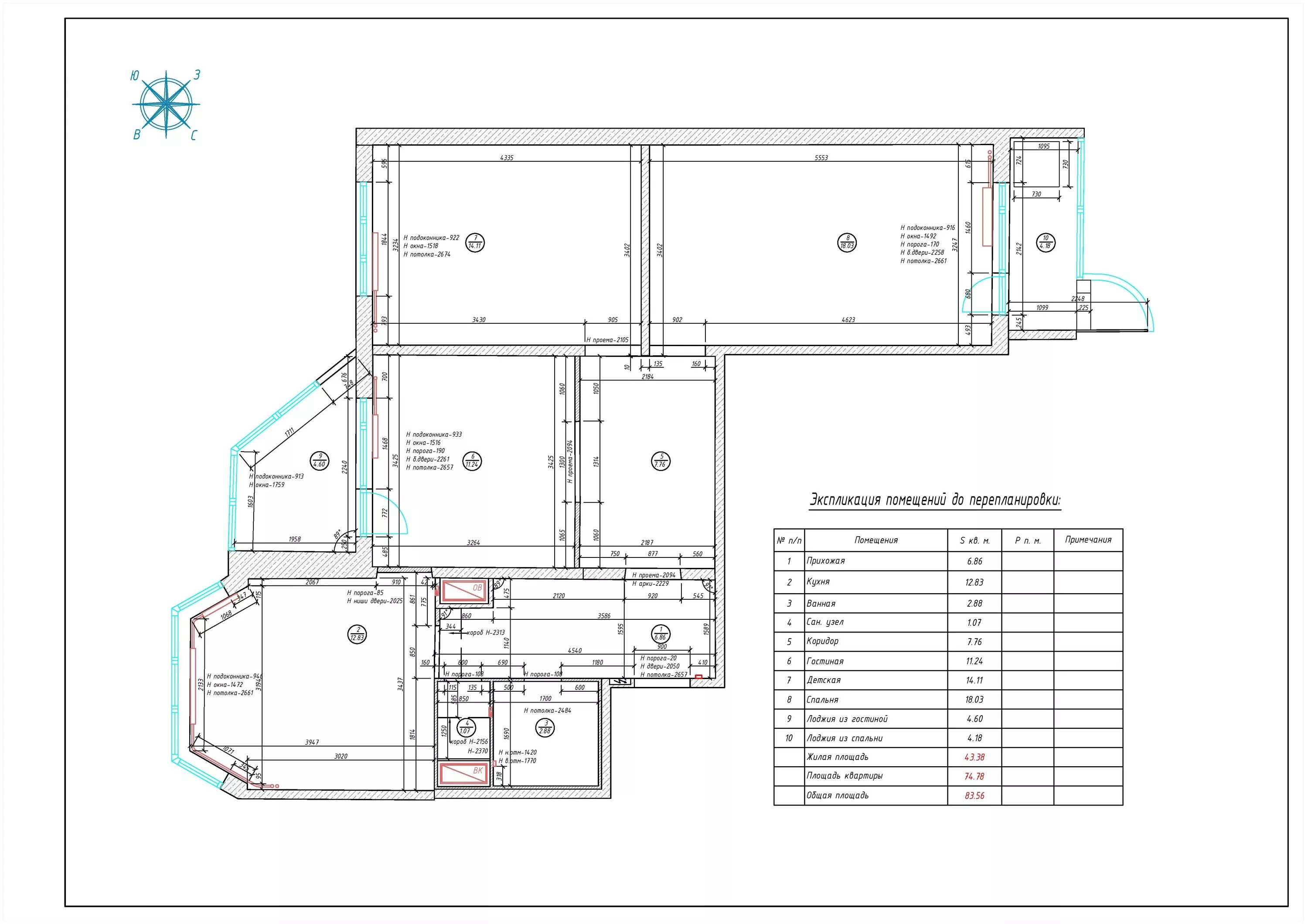
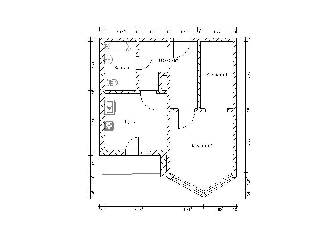
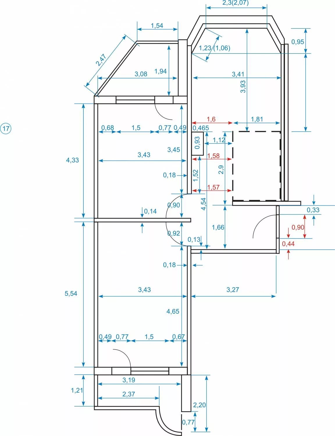
П 44 размеры