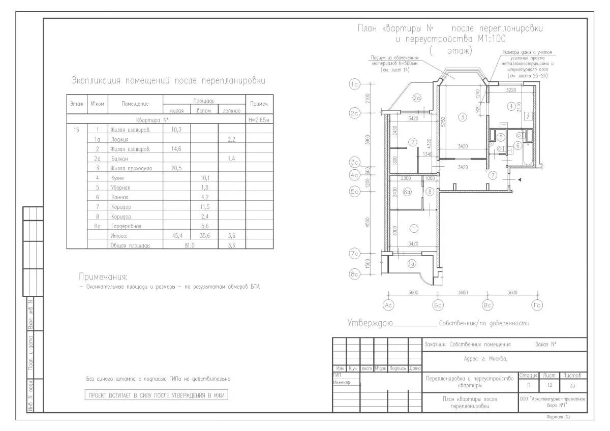
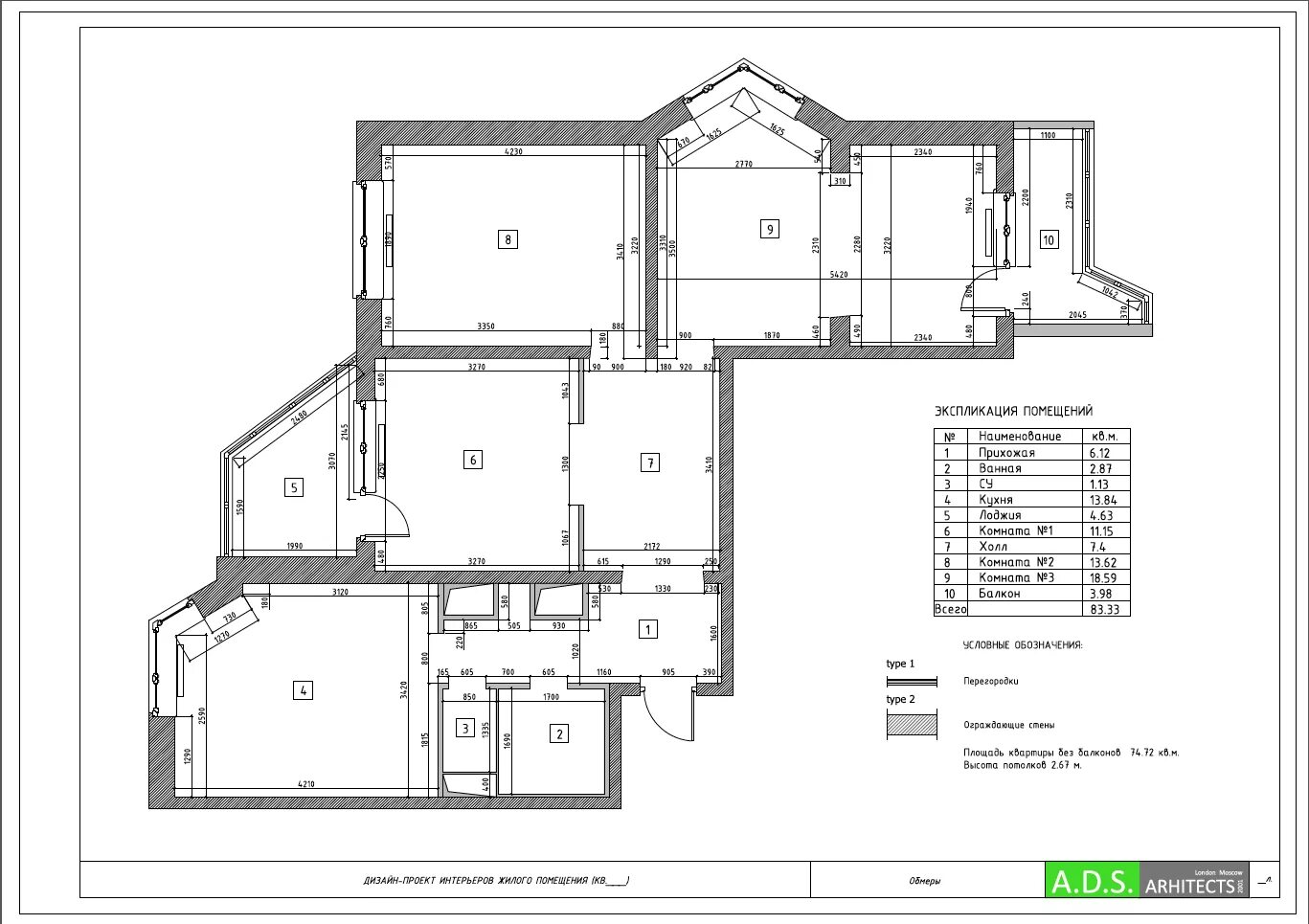
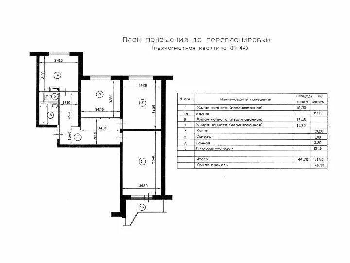
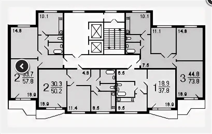
П 44 стены