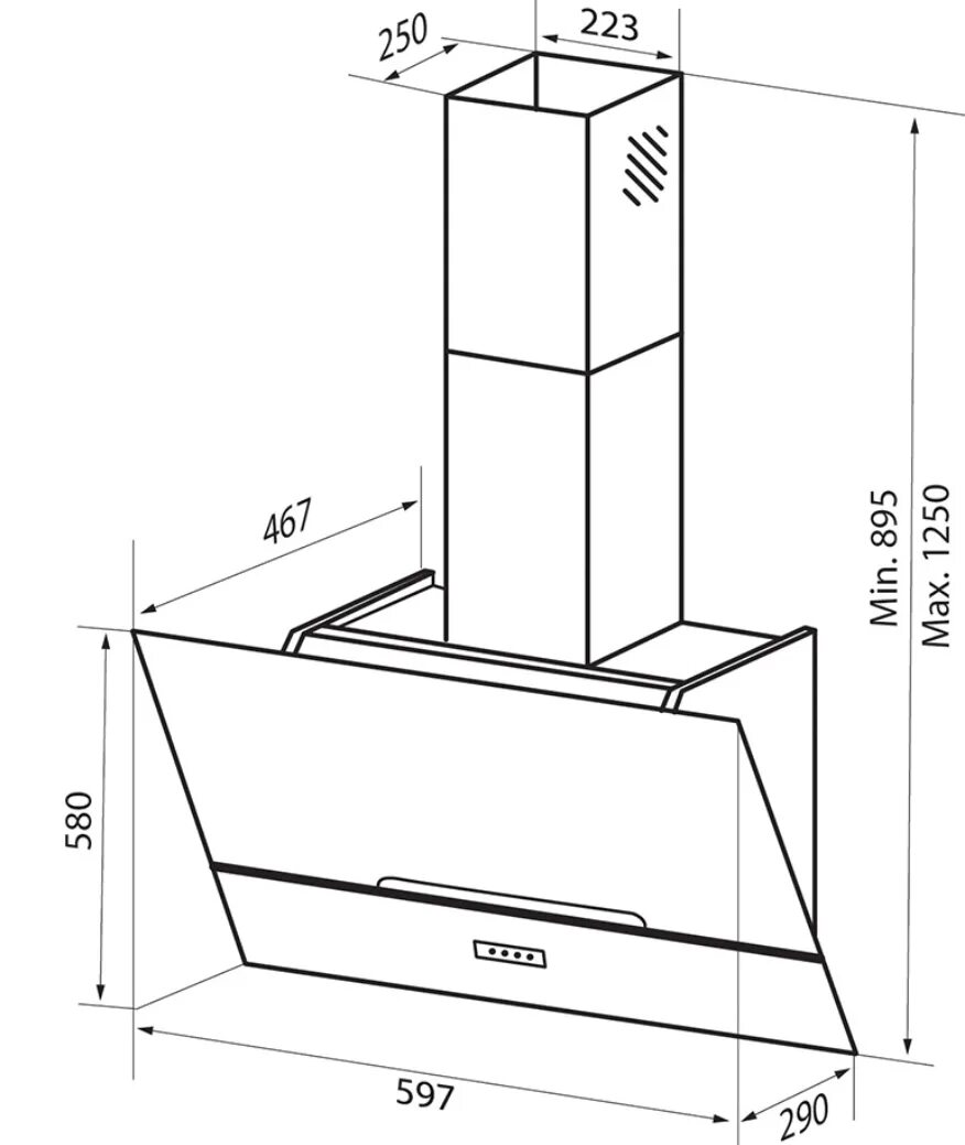
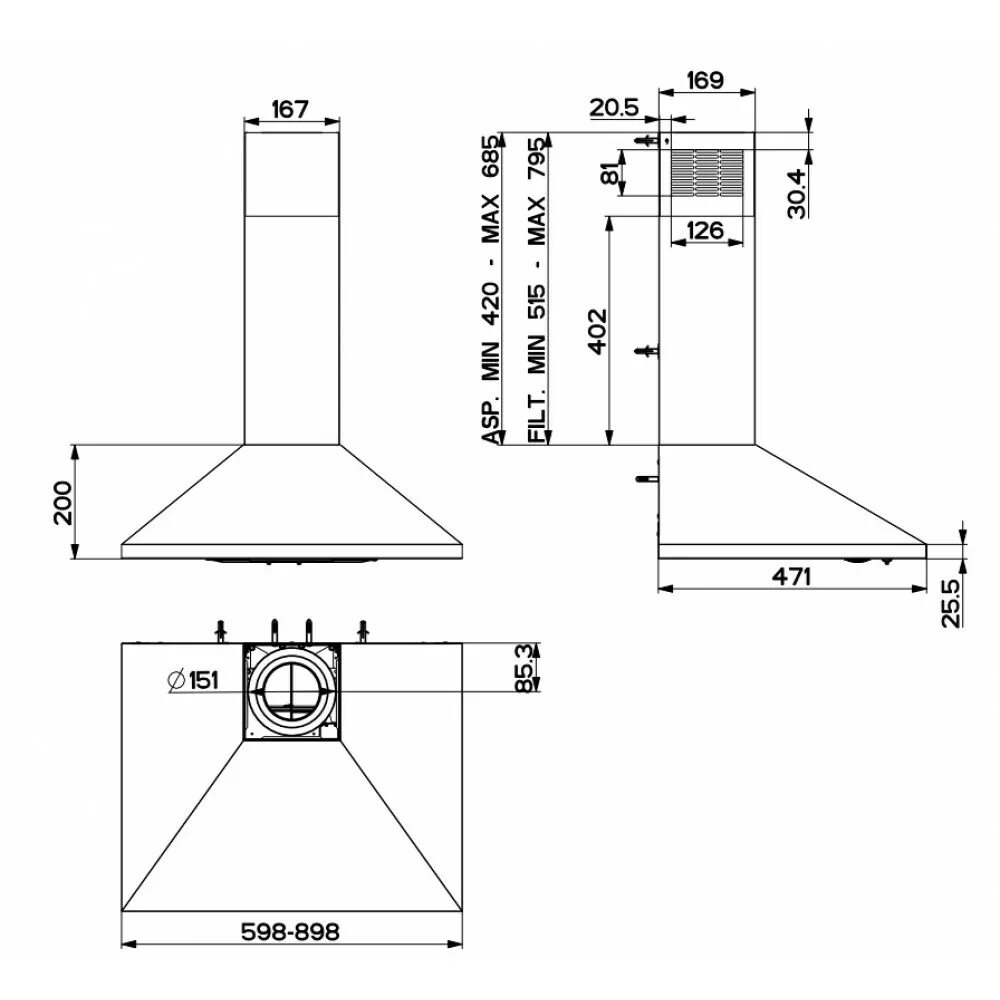
Параметры вытяжки