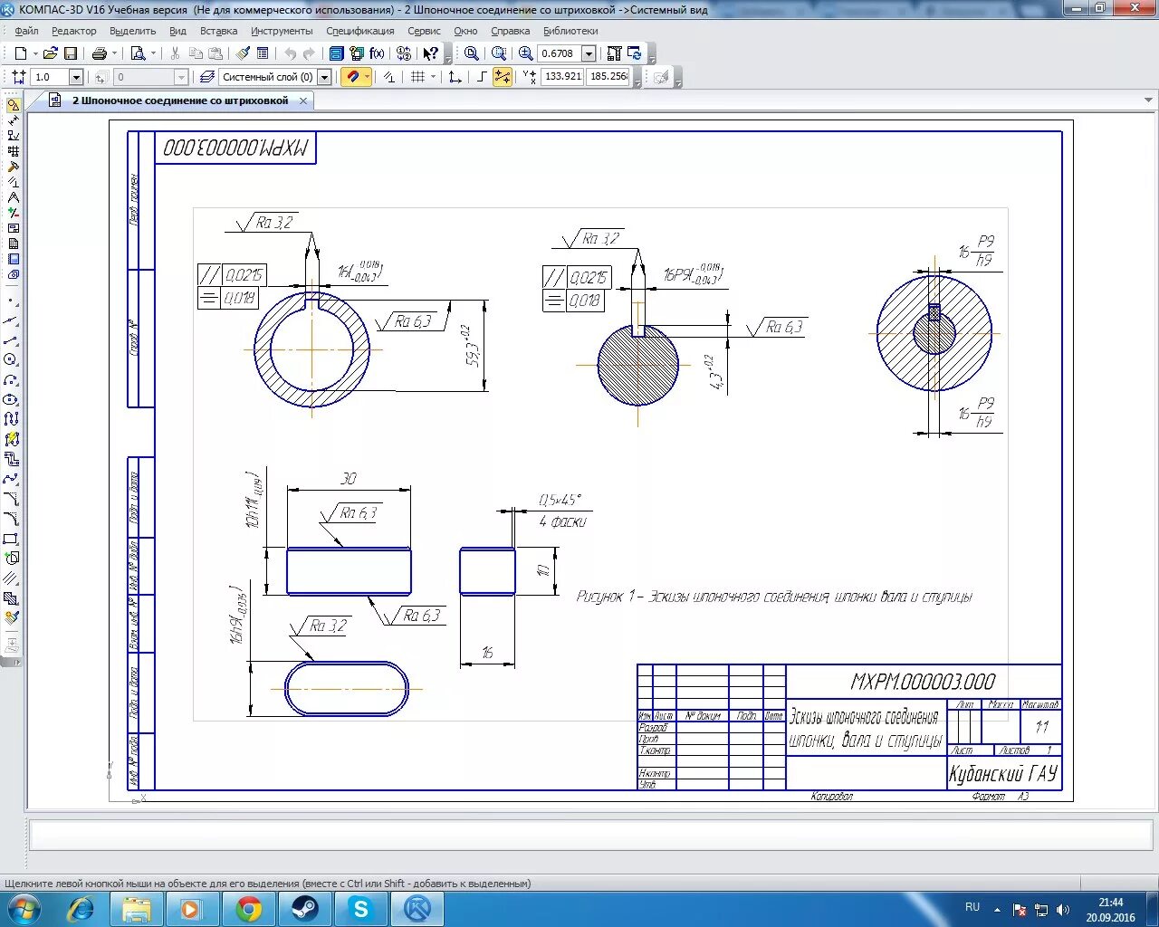
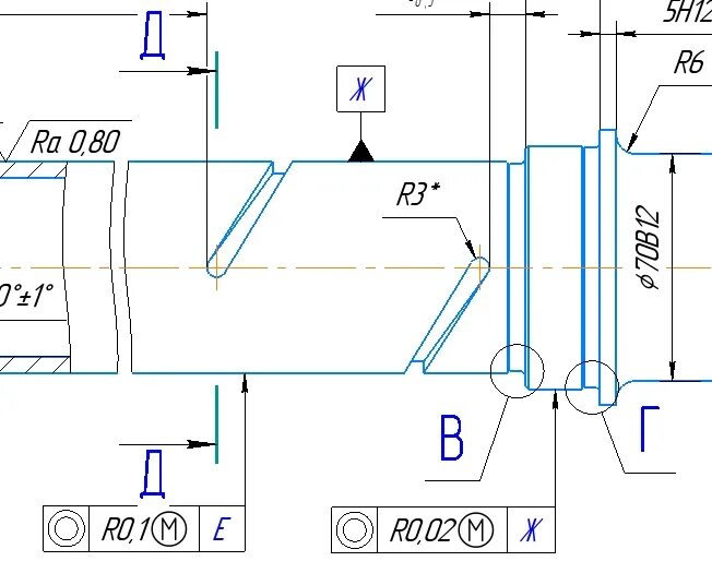
Пазы в компасе