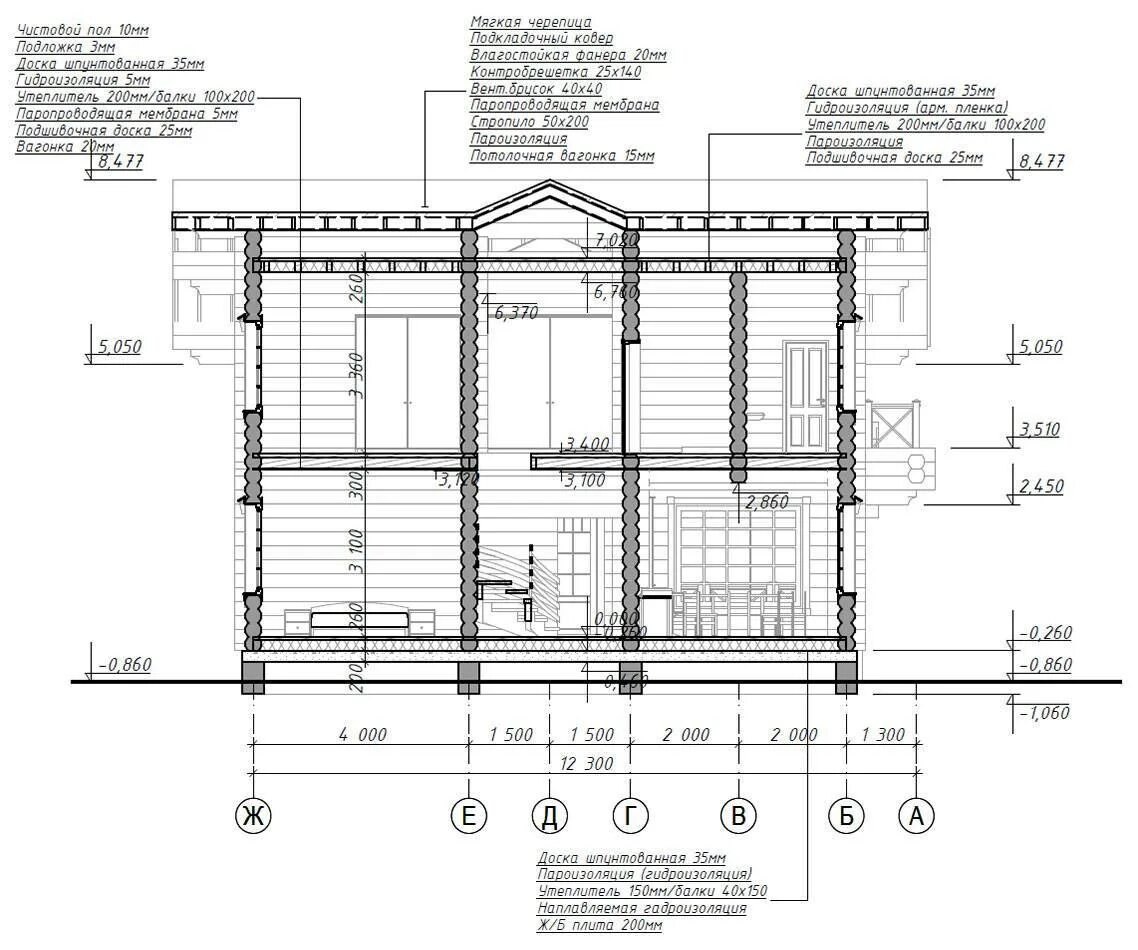
Перекрытия зданий и полы