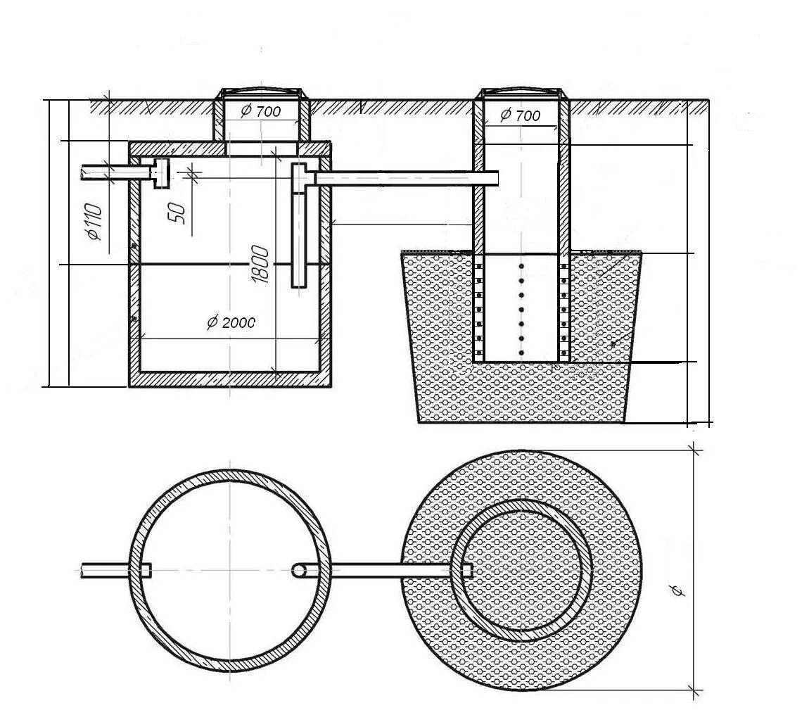
Переливная канализация из бетонных