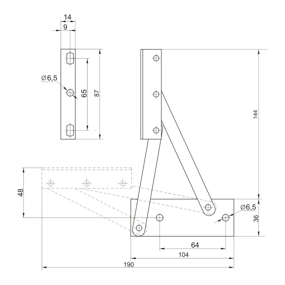
Петля пантограф