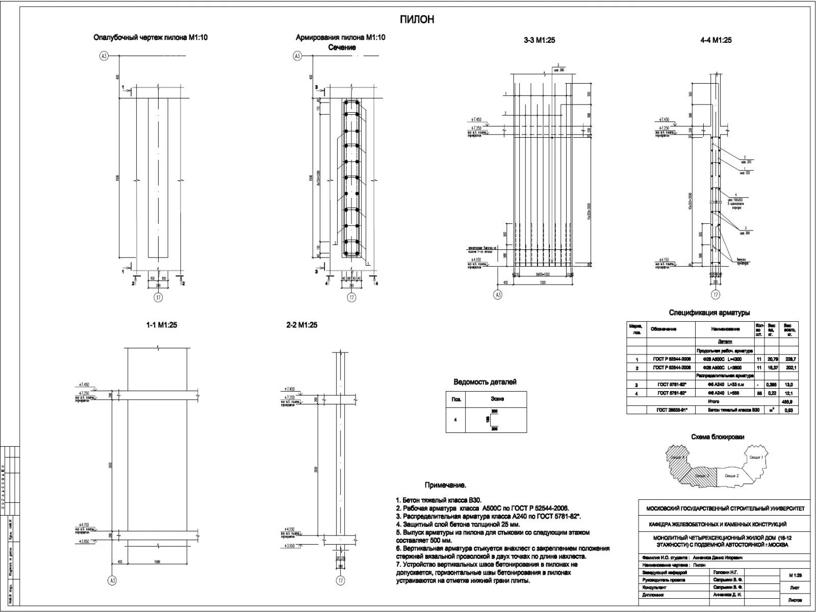
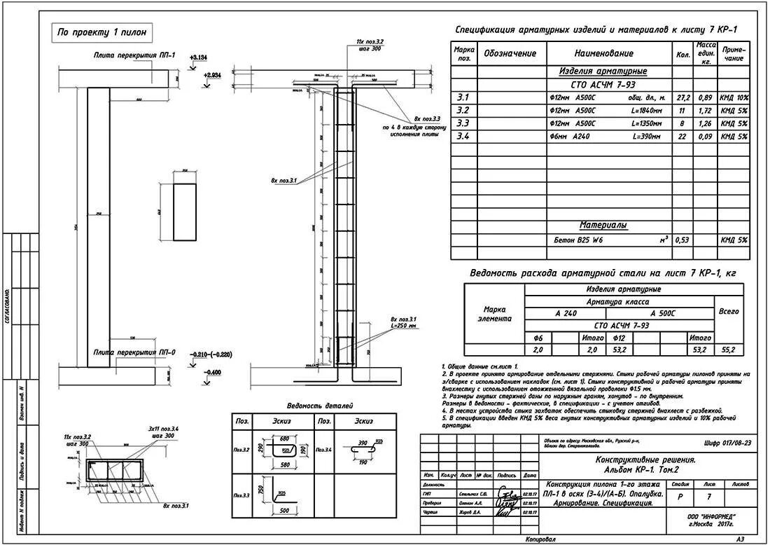
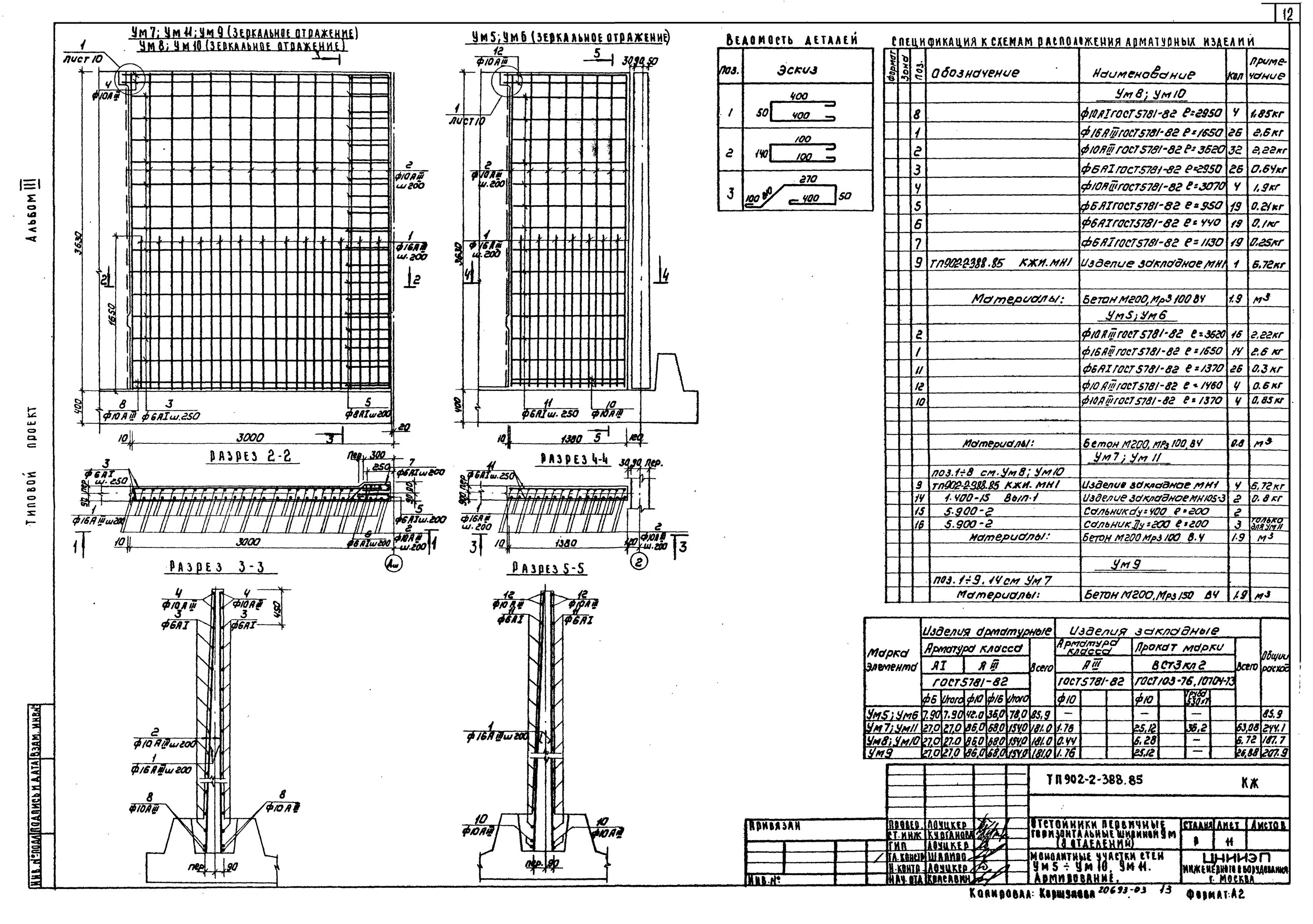
Пилон жб