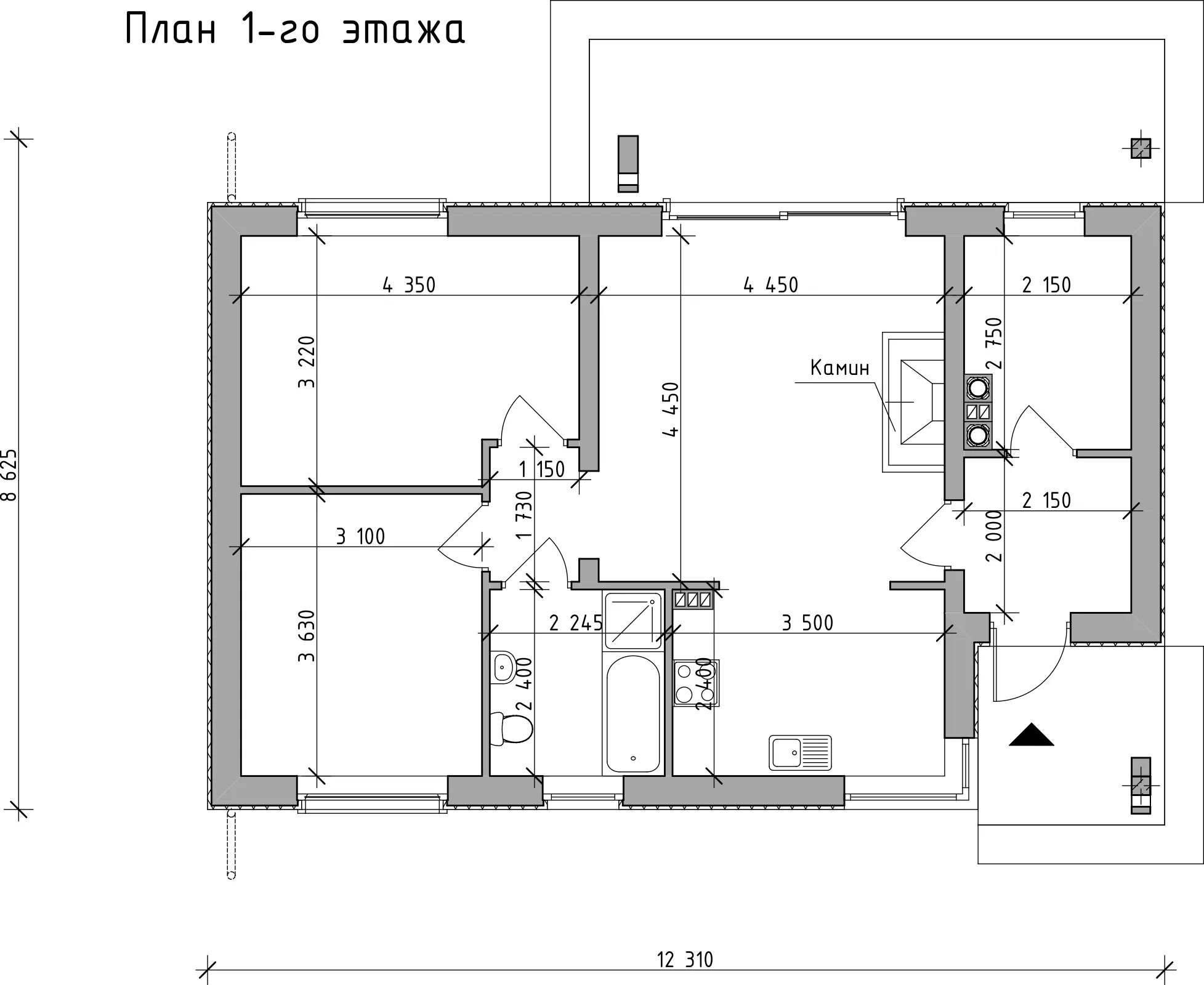
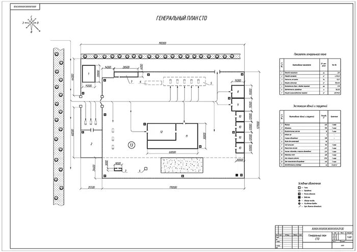
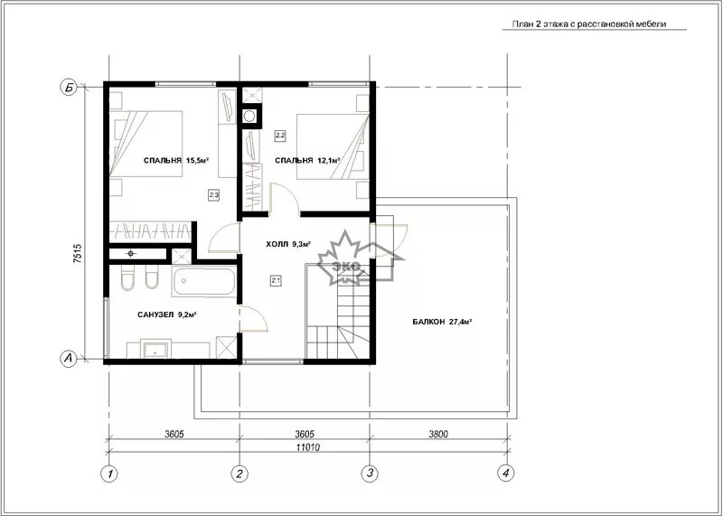
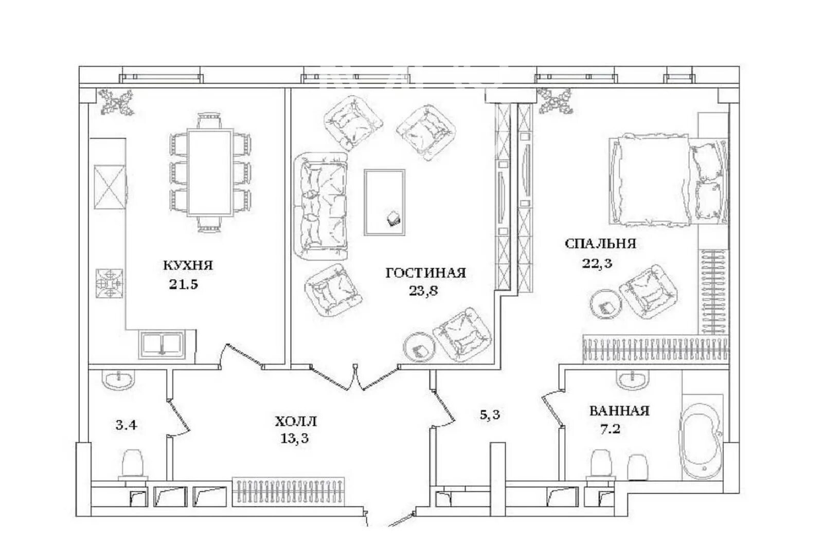
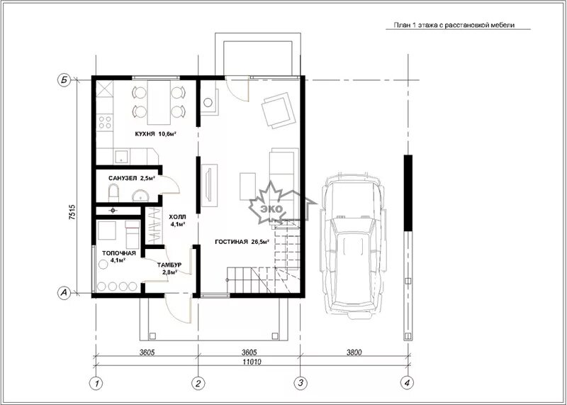
План c