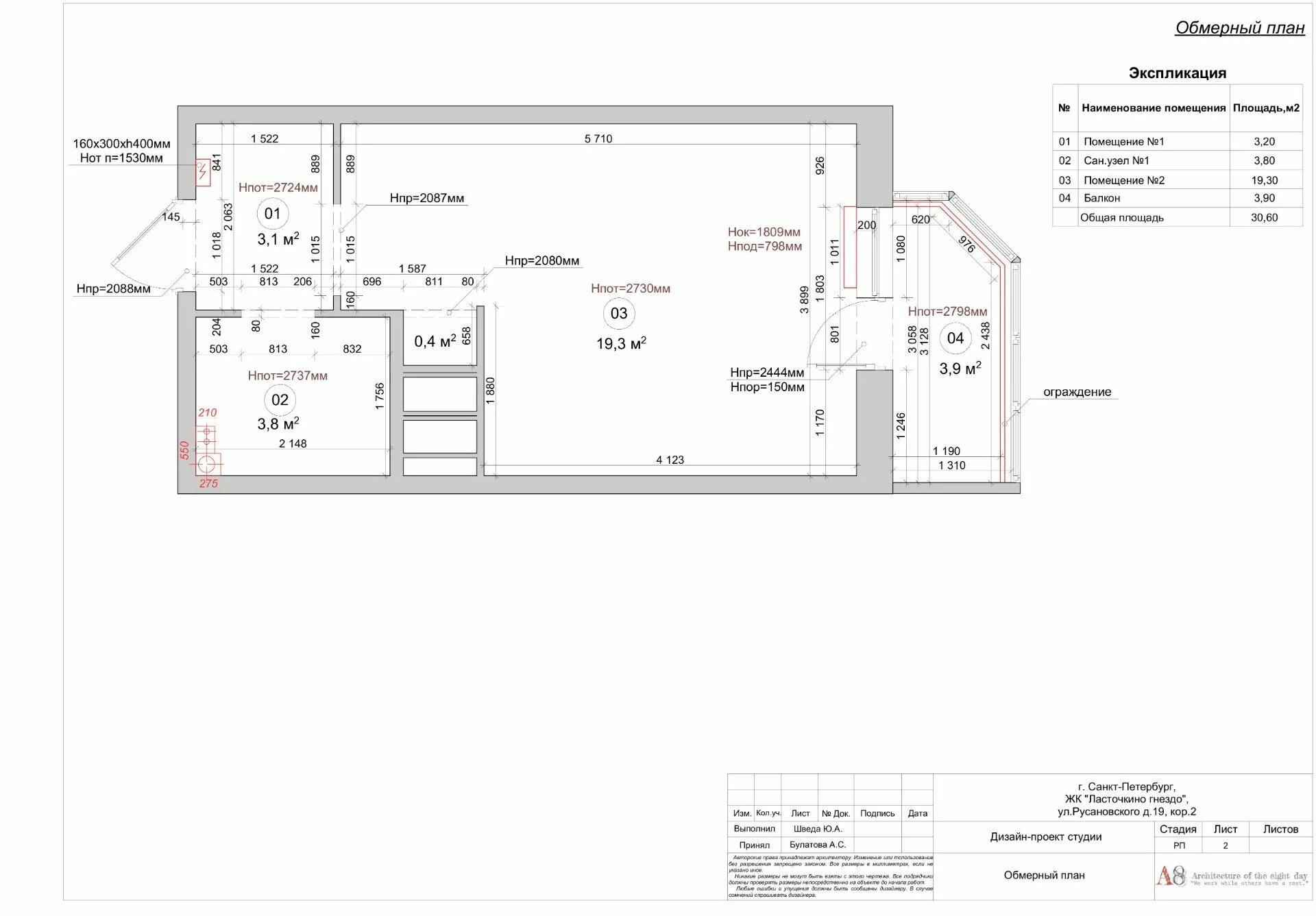
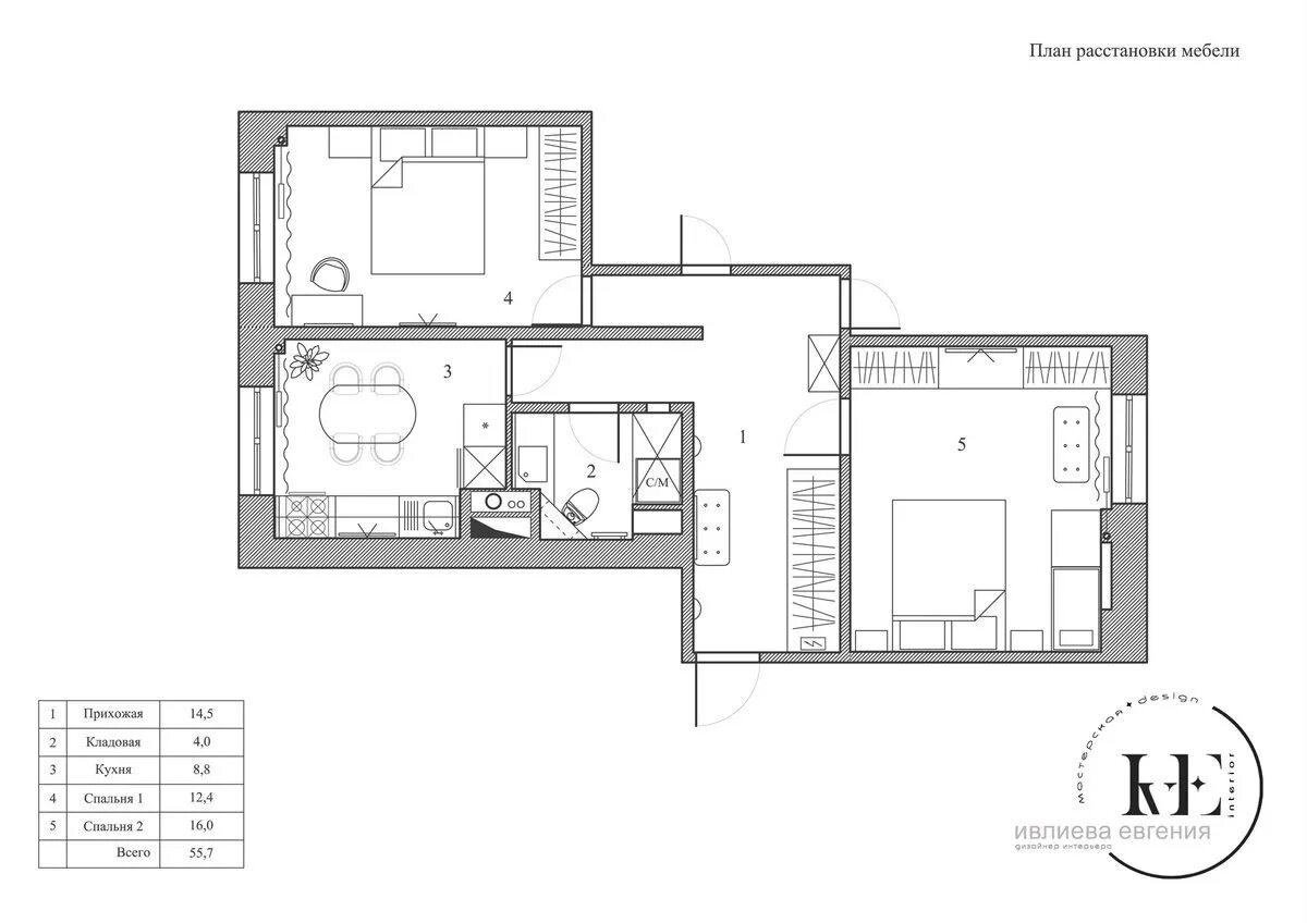
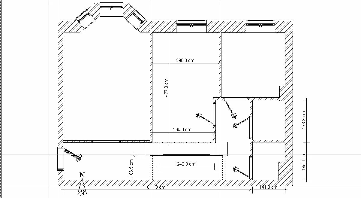
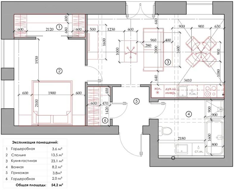
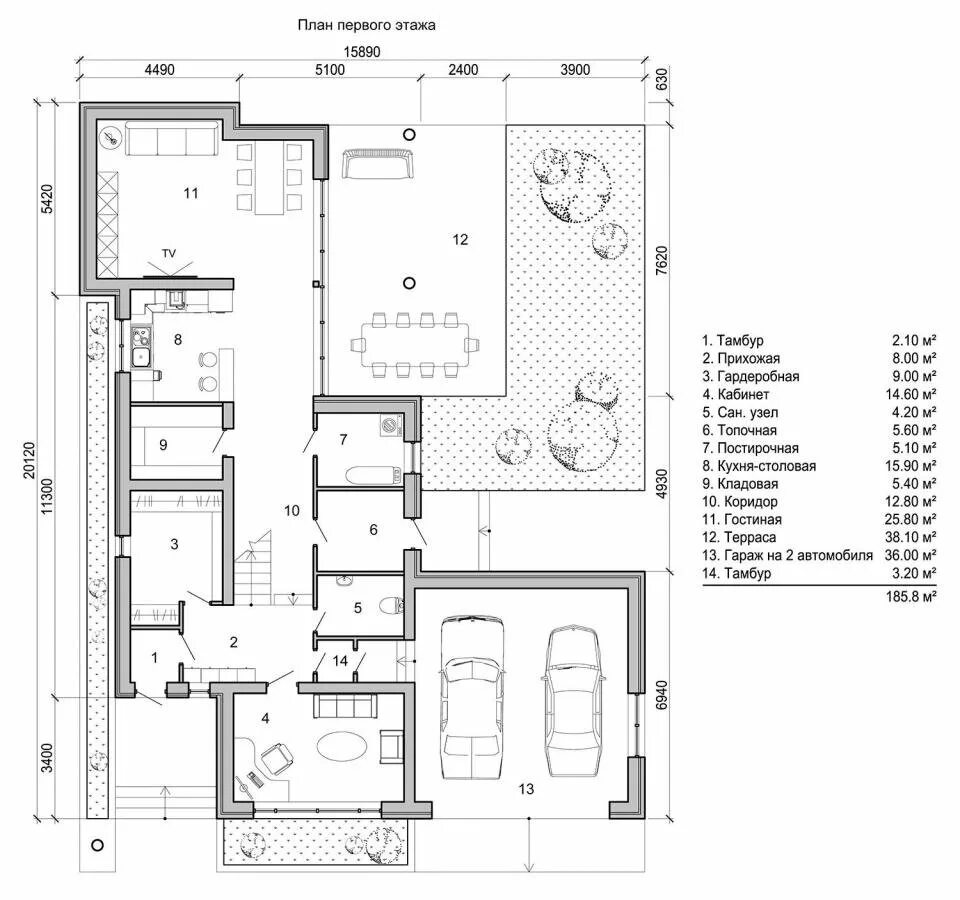
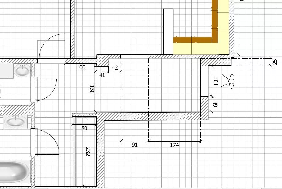
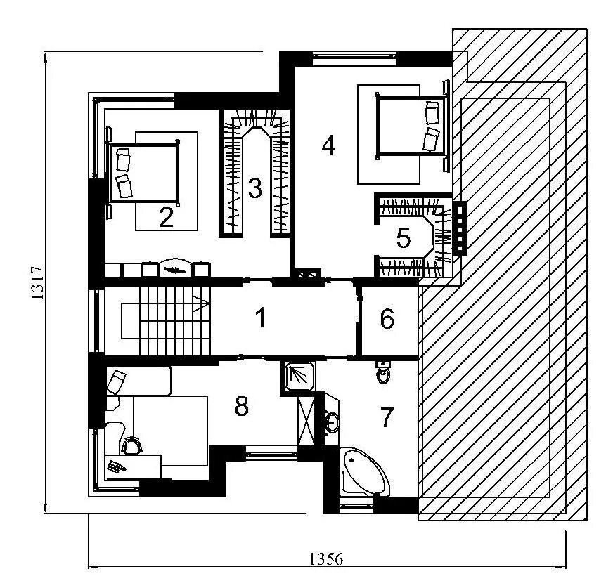
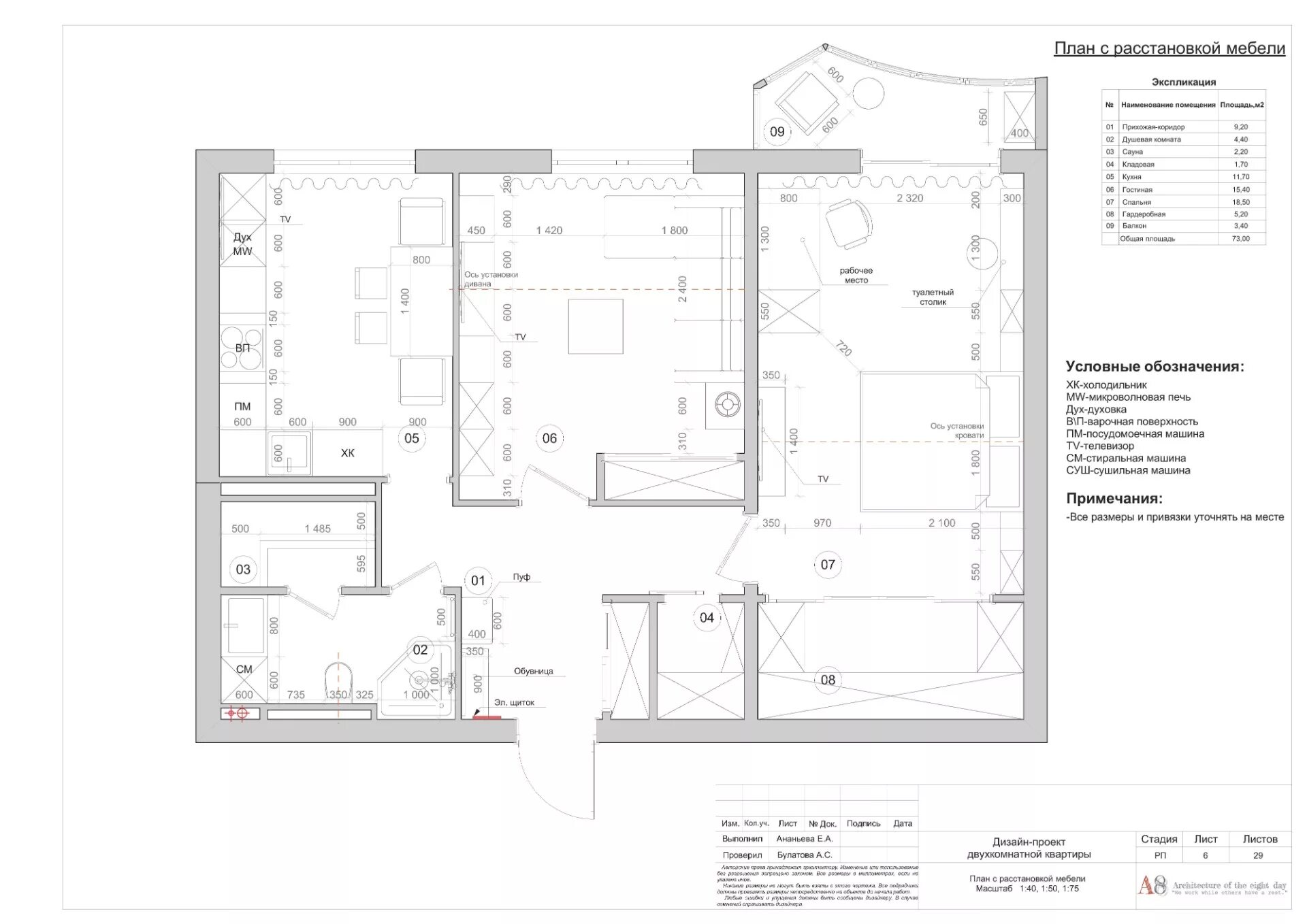
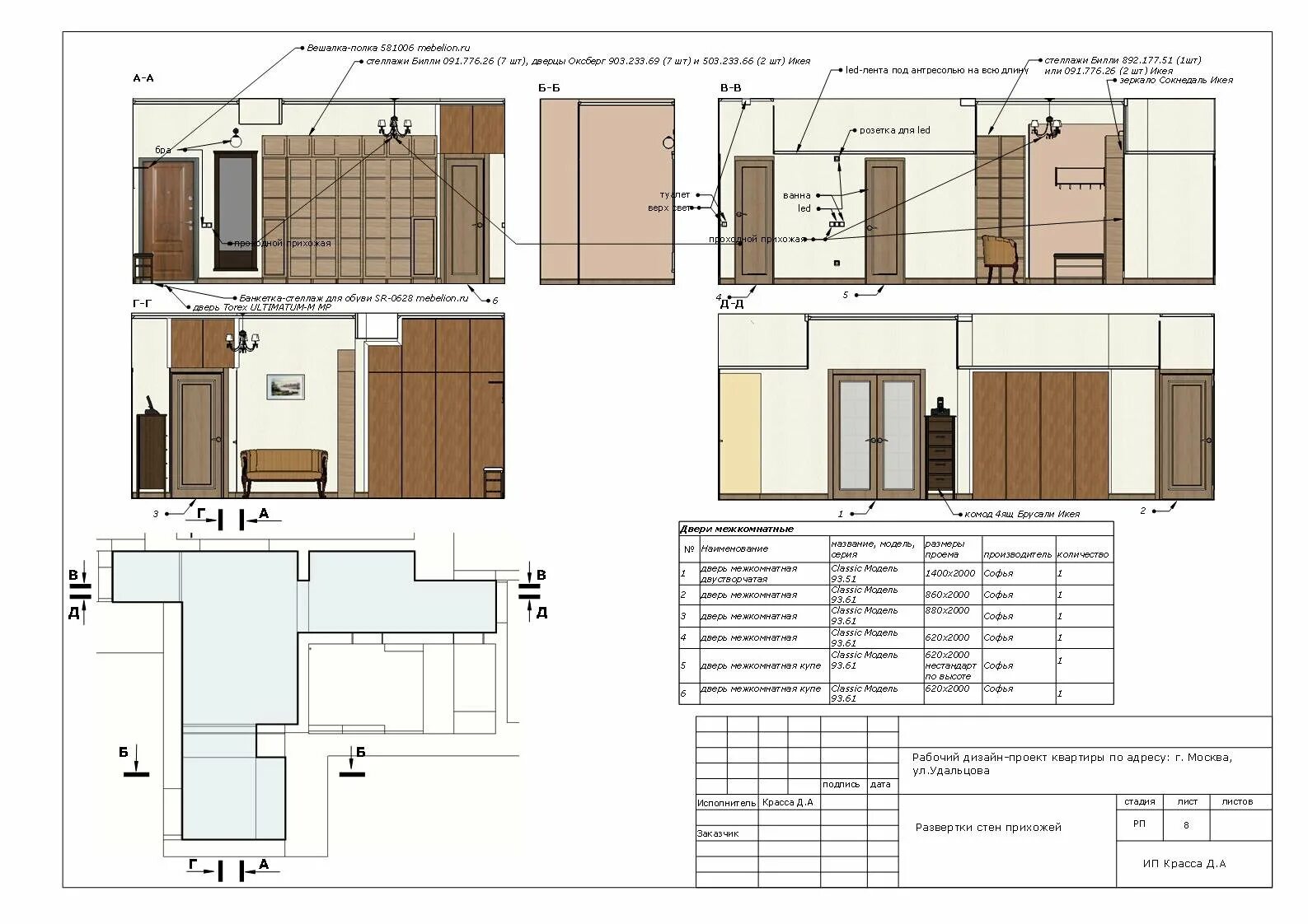
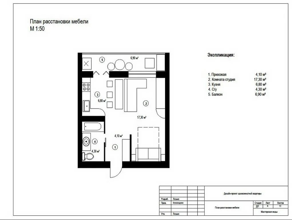
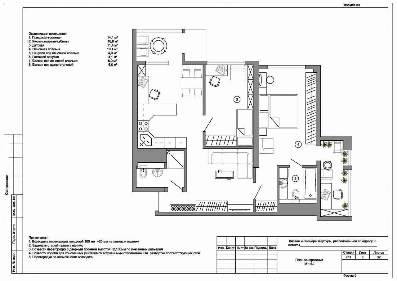
План коридора