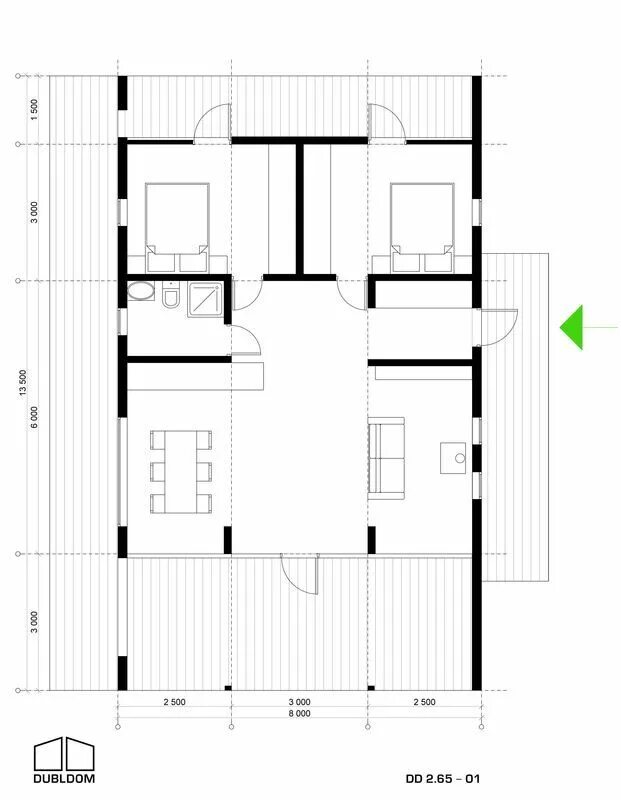
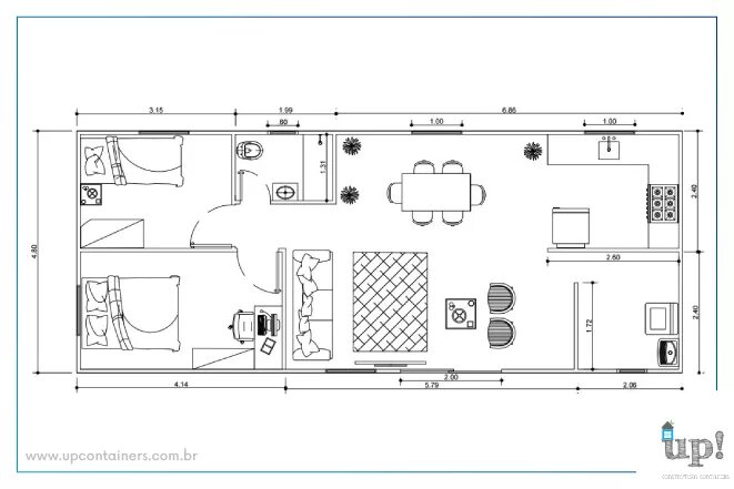
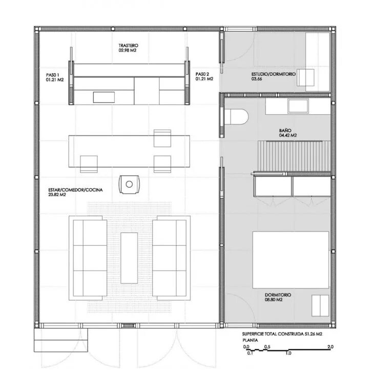
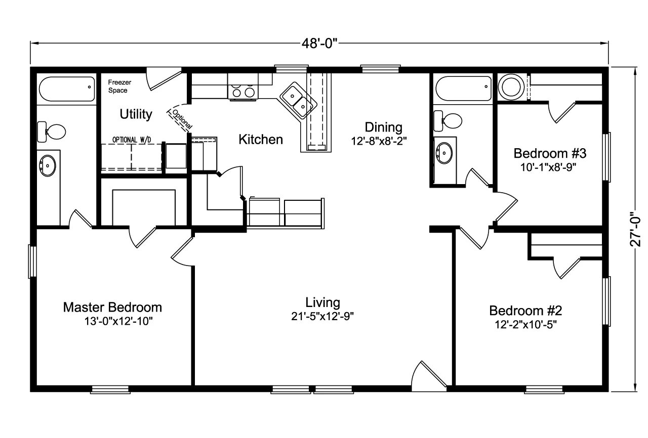
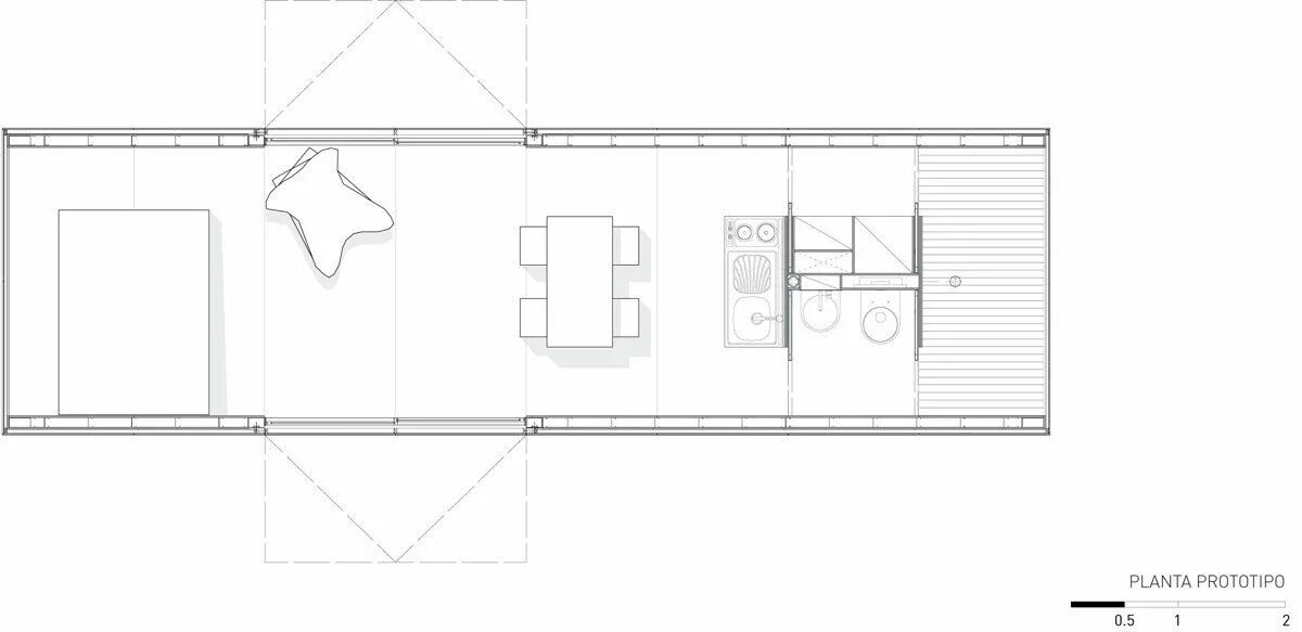
Plan module