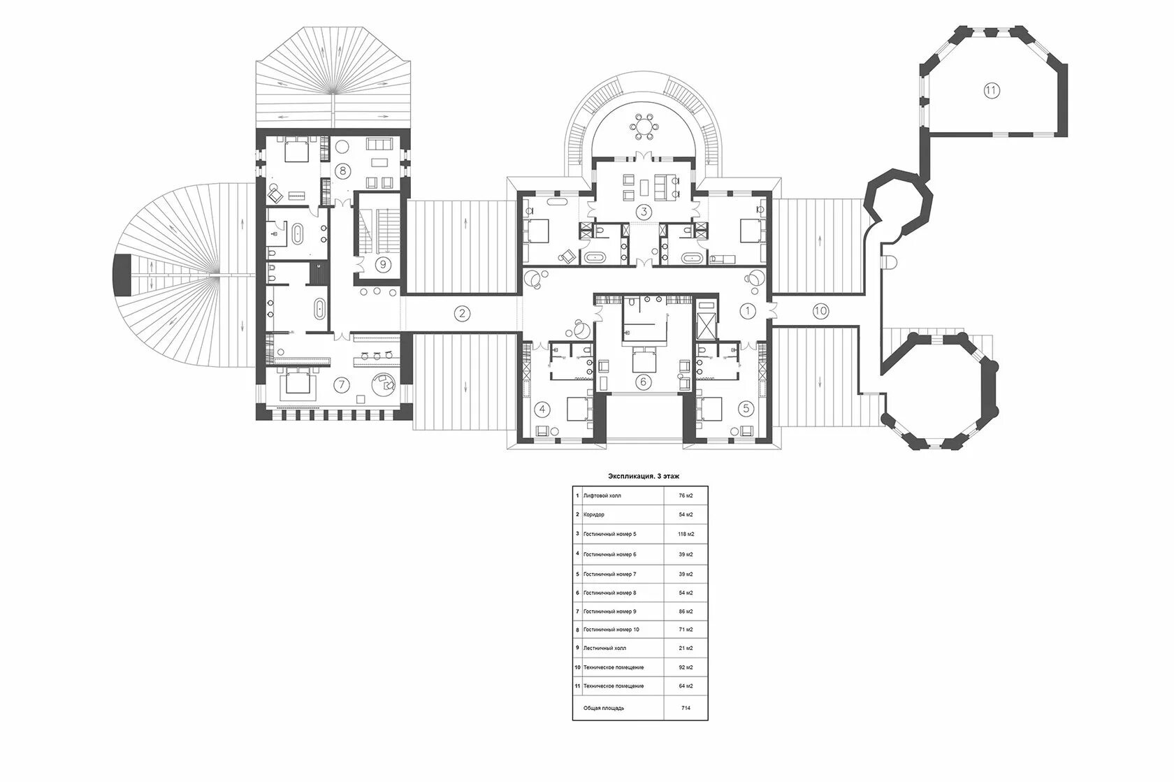
План особняка