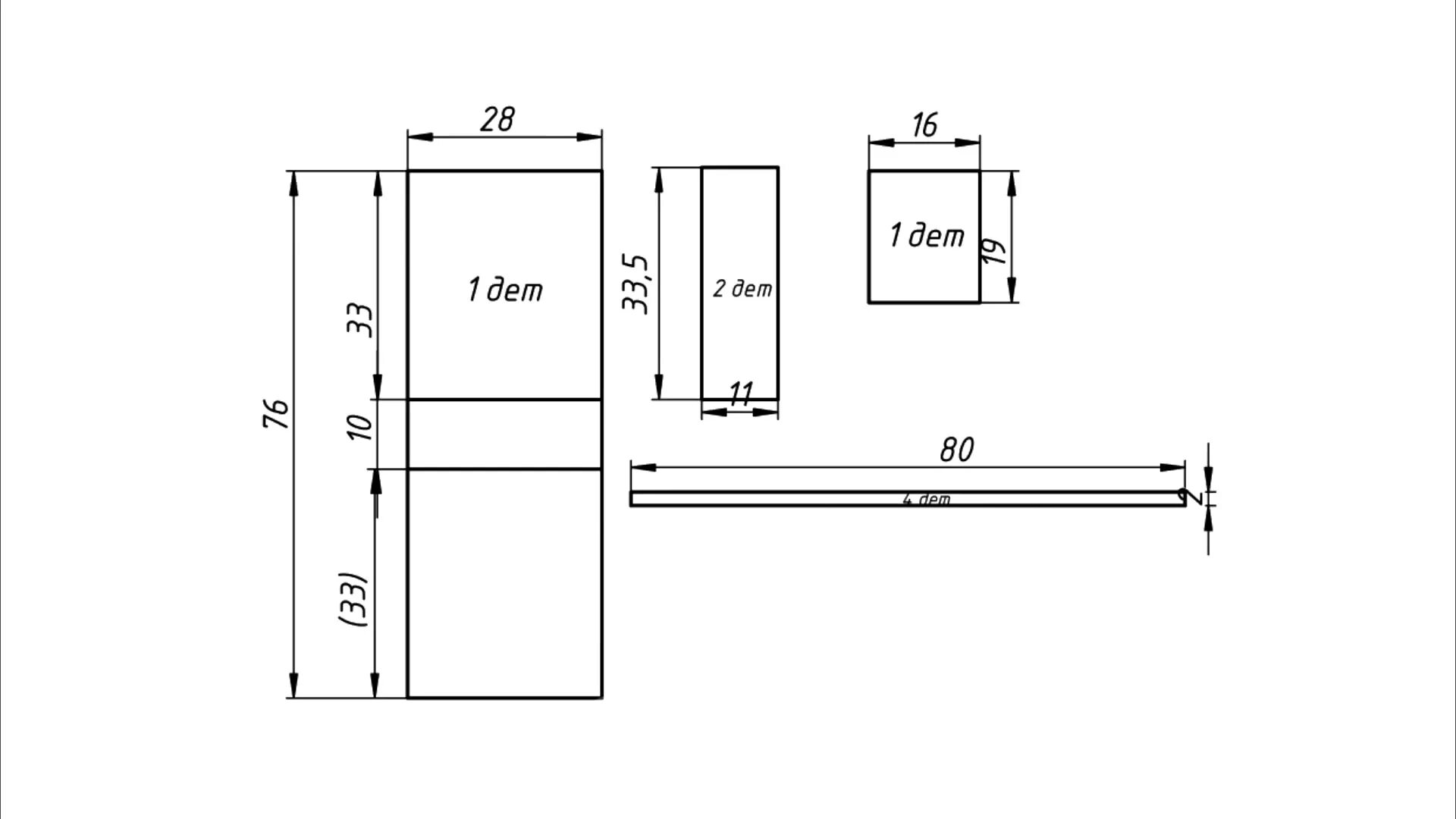
План шоппера