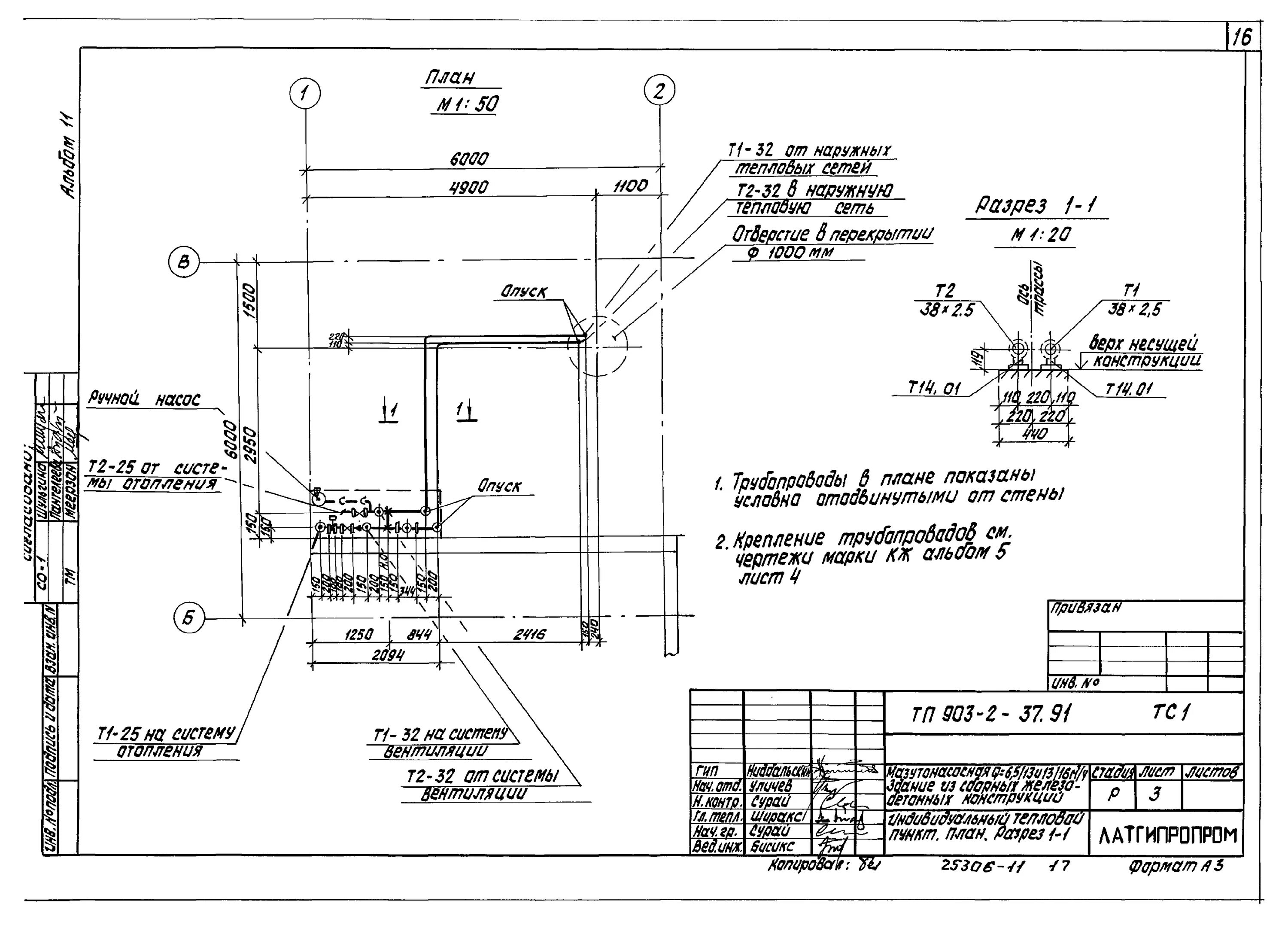
План теплотрассы