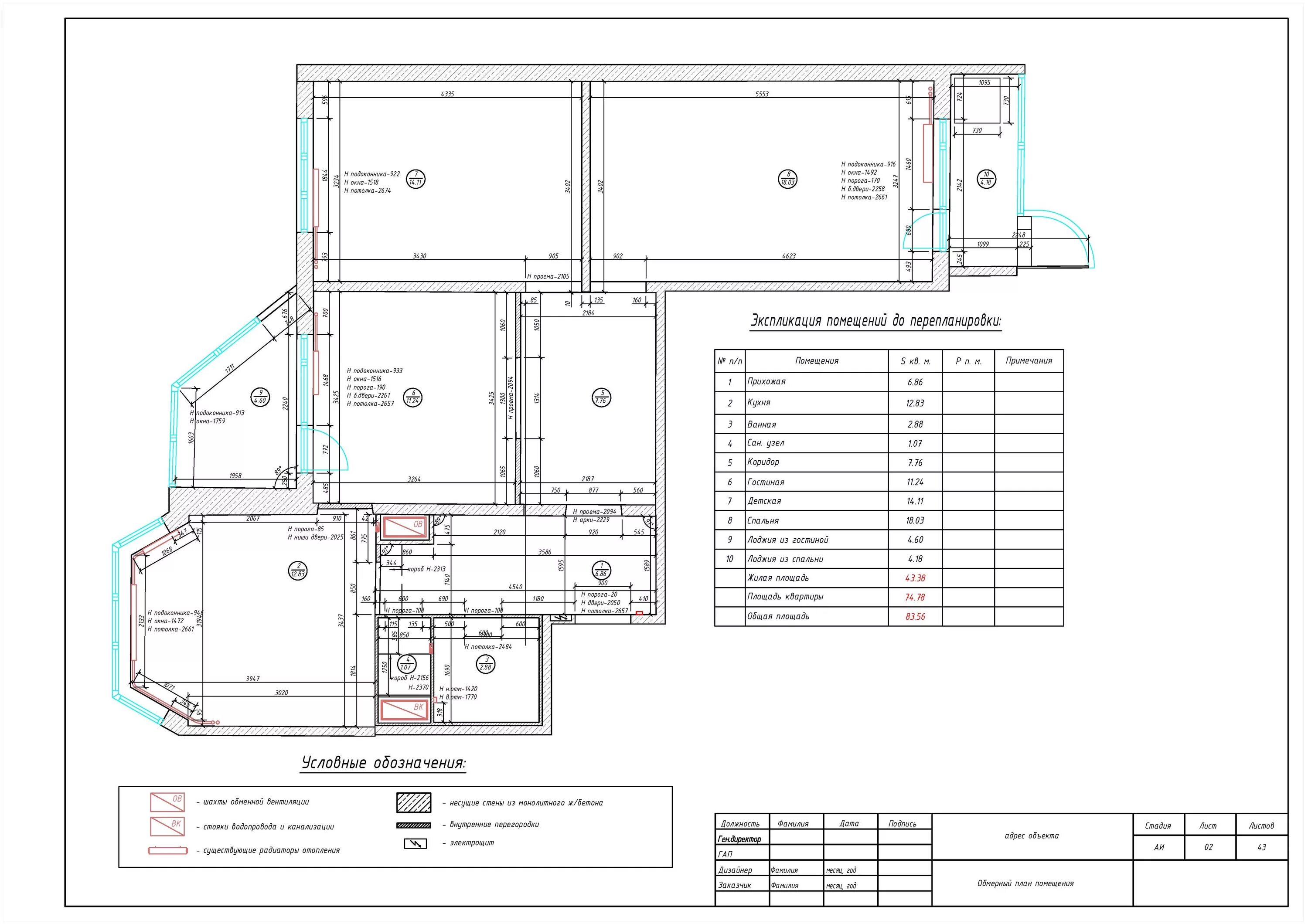
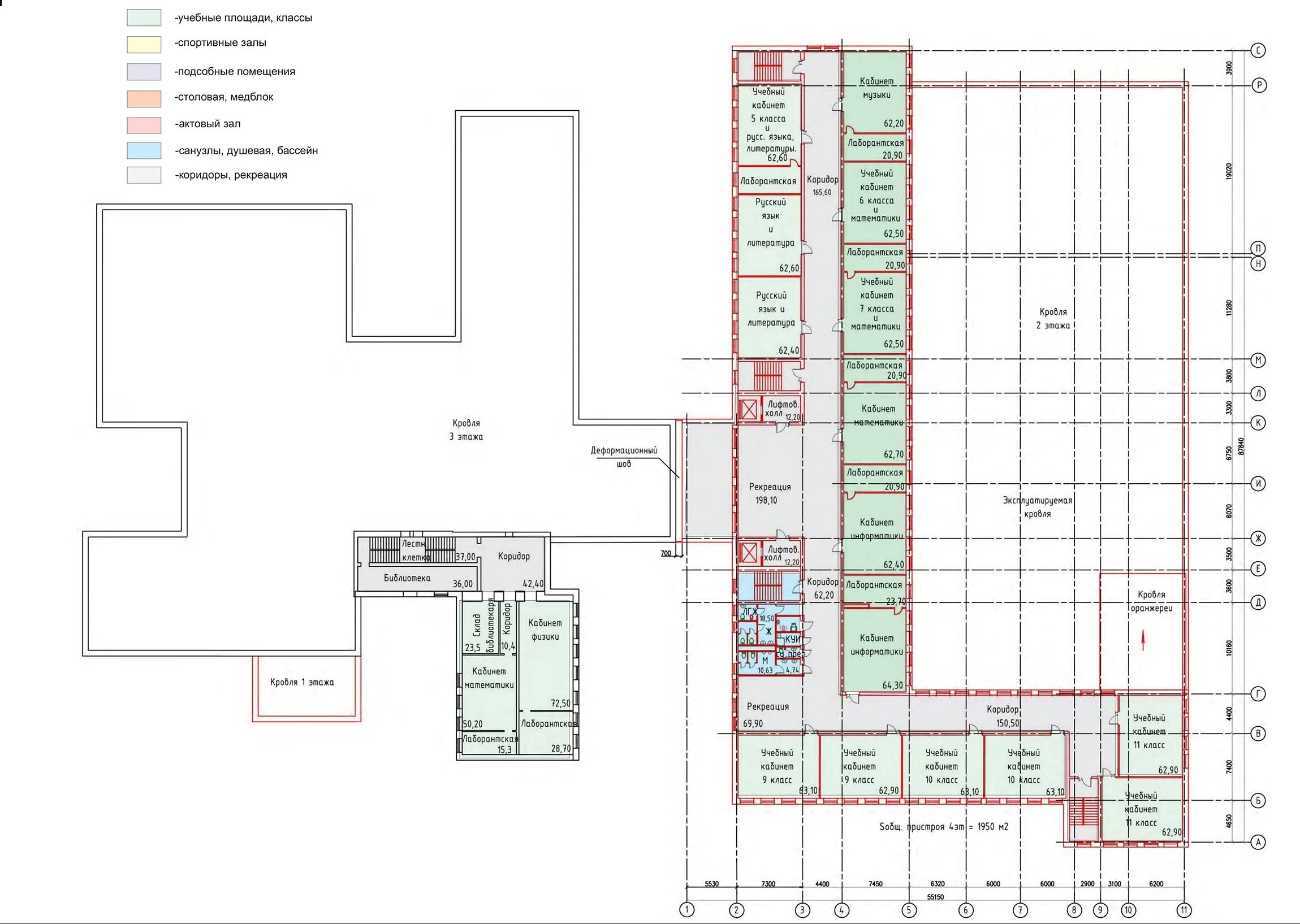
План третьего