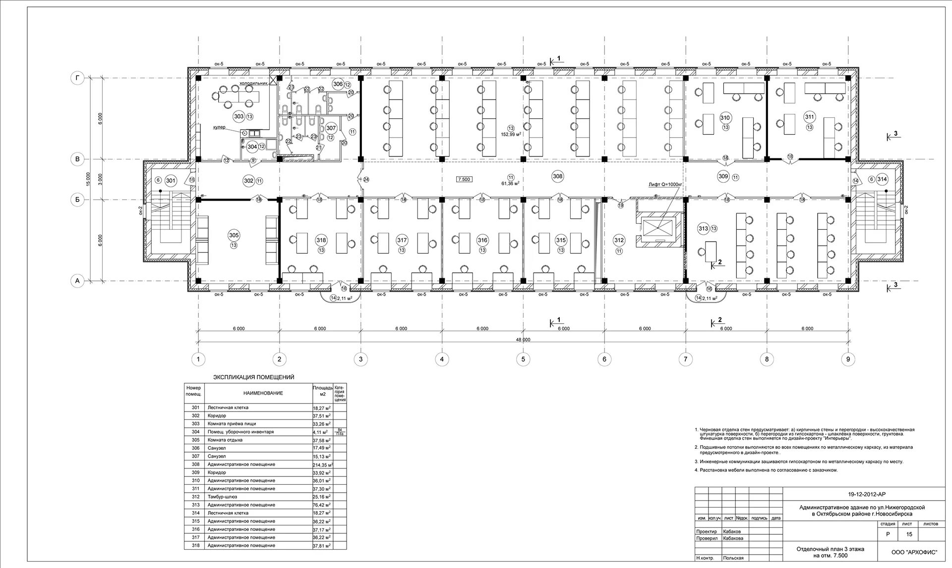
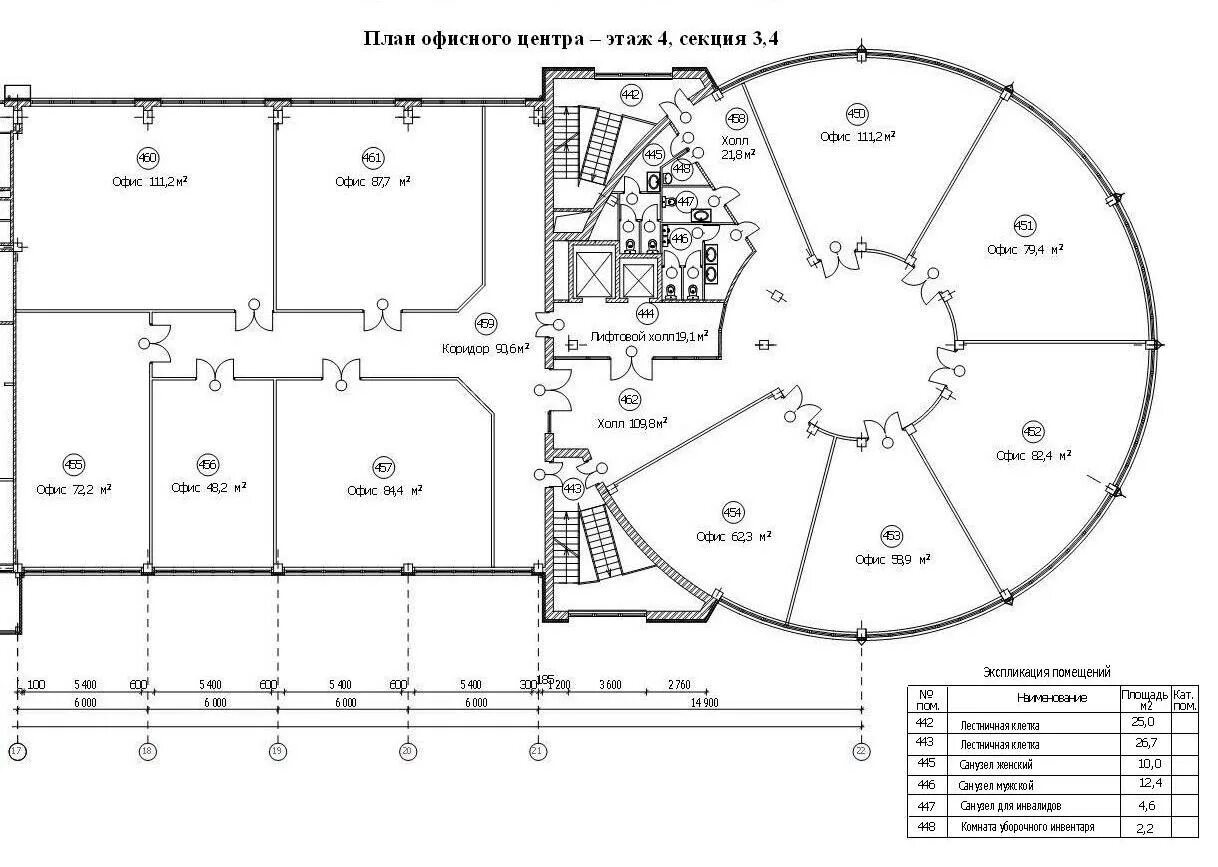
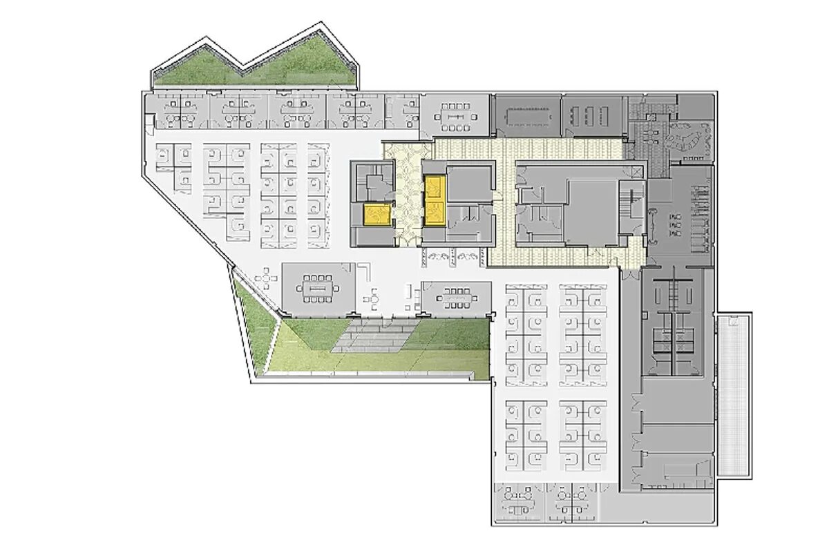
Планировка административного здания