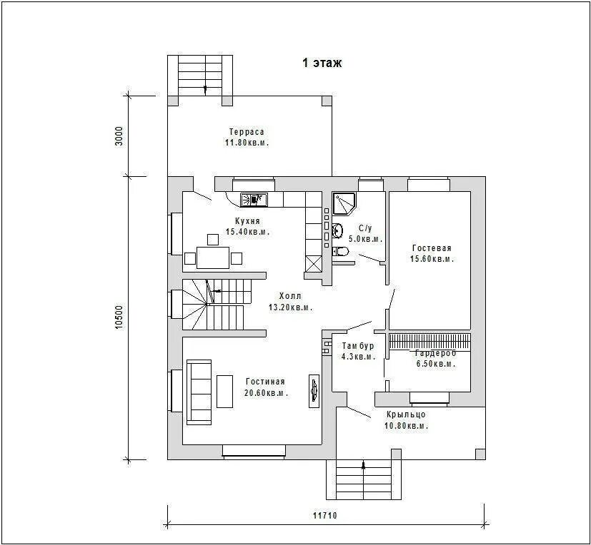
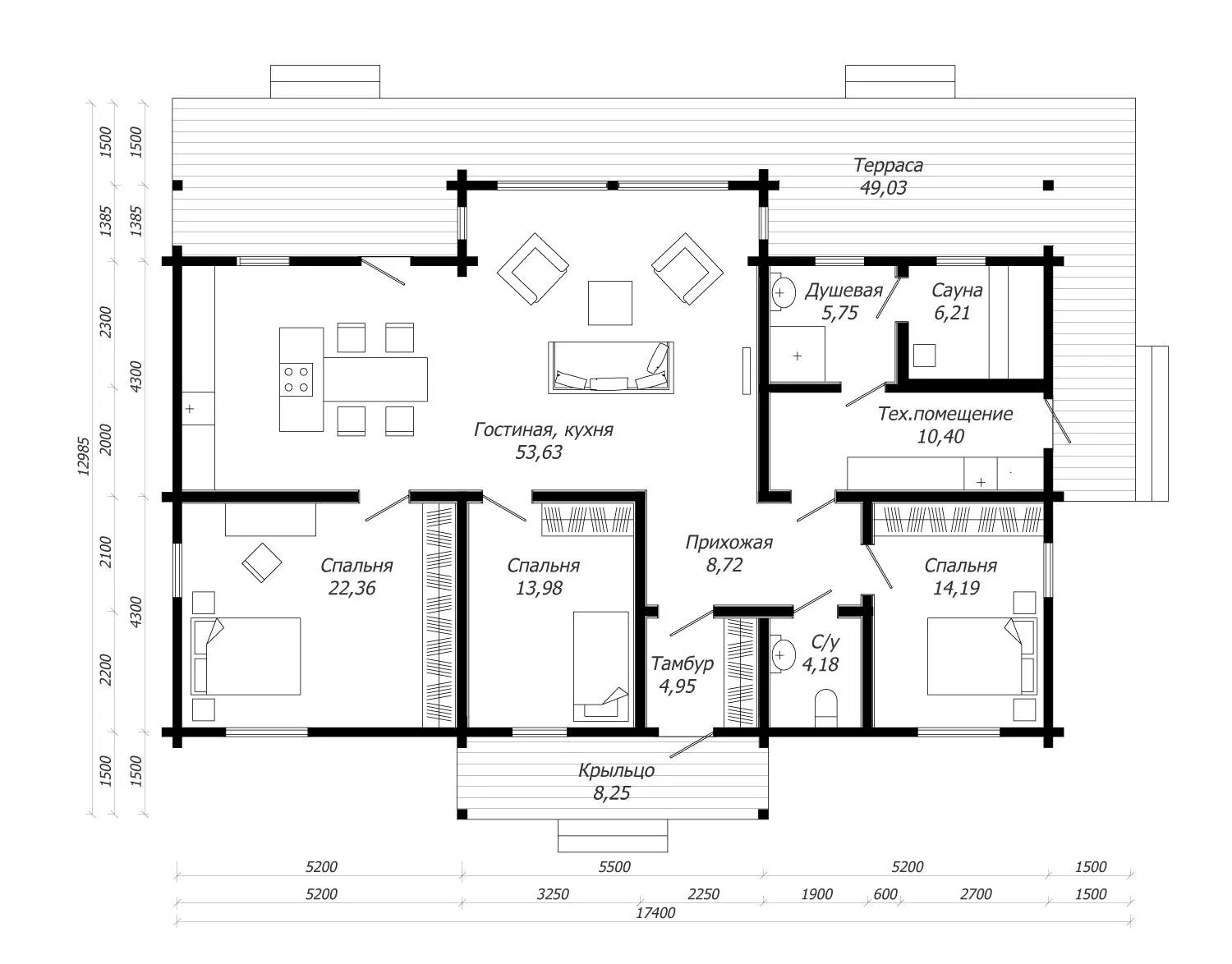
Планы домов в предложении