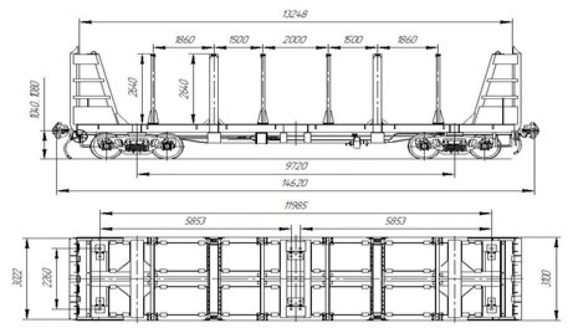
Платформа модели 13 6704