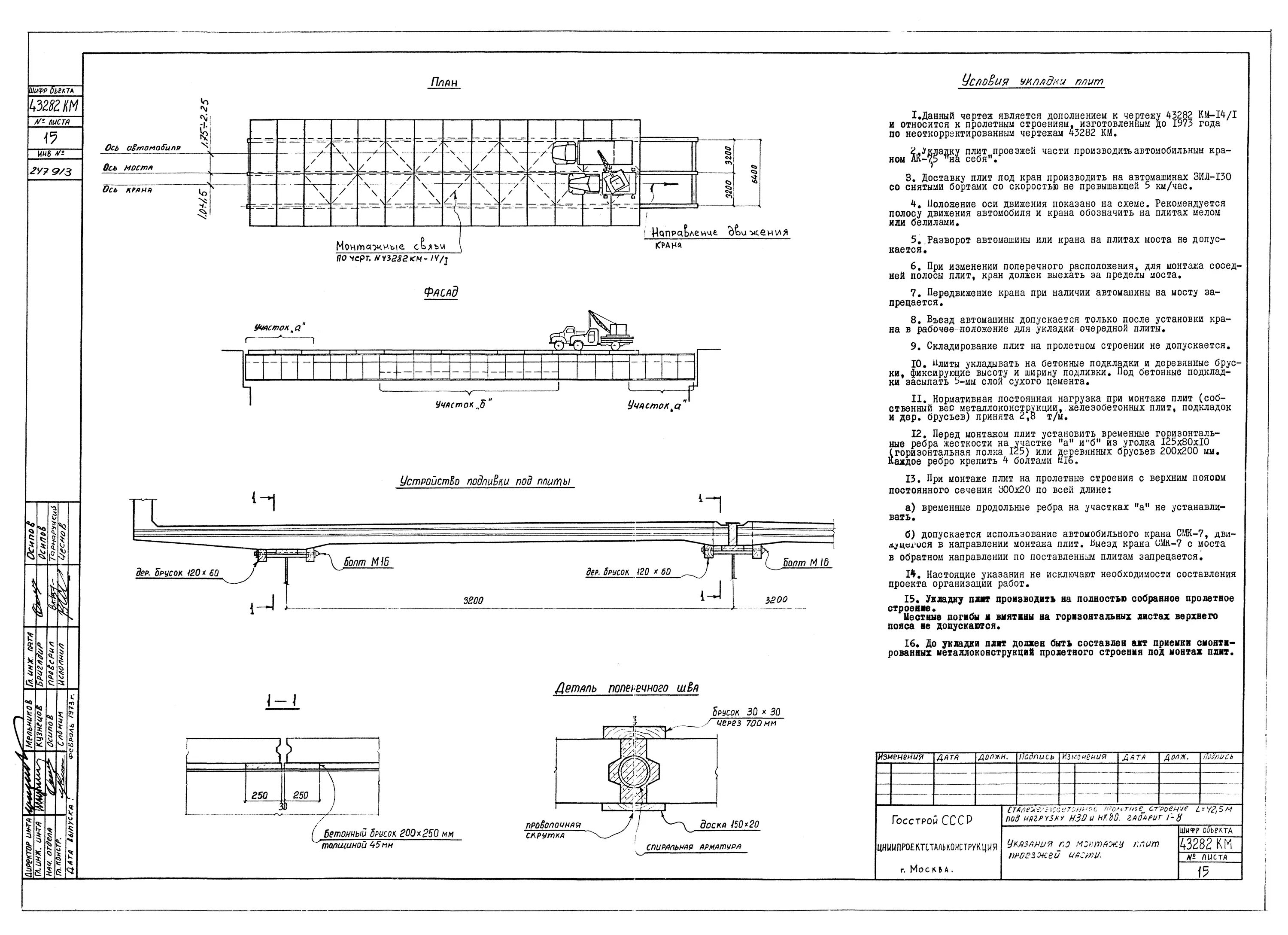
Плита пролетного строения