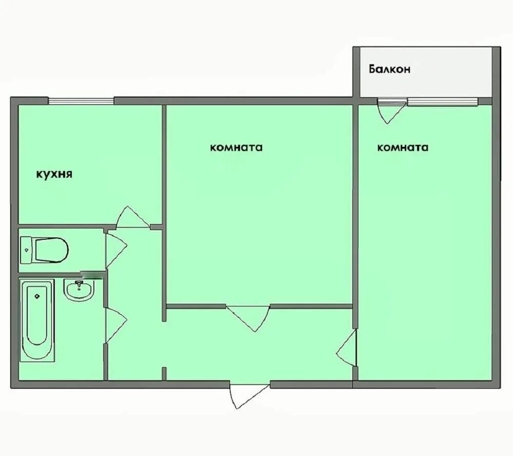
Площадь 10 7 кв м