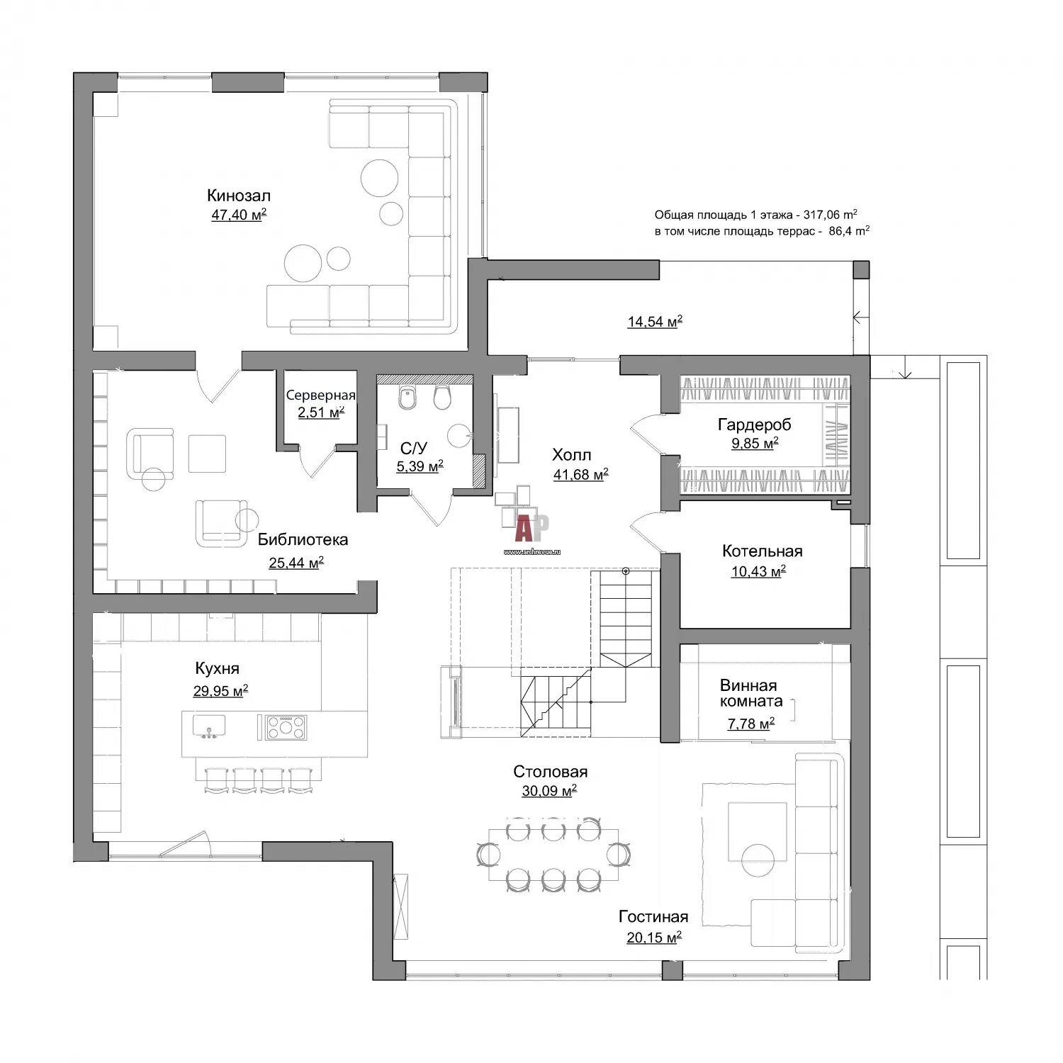
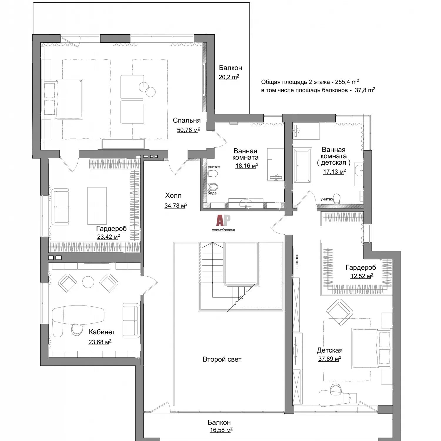
Площадь 450 кв м