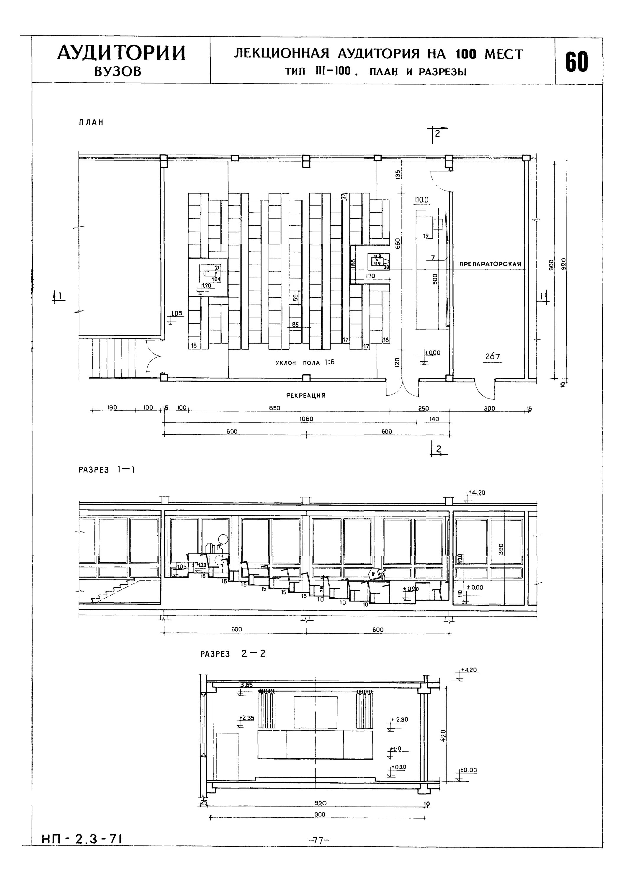
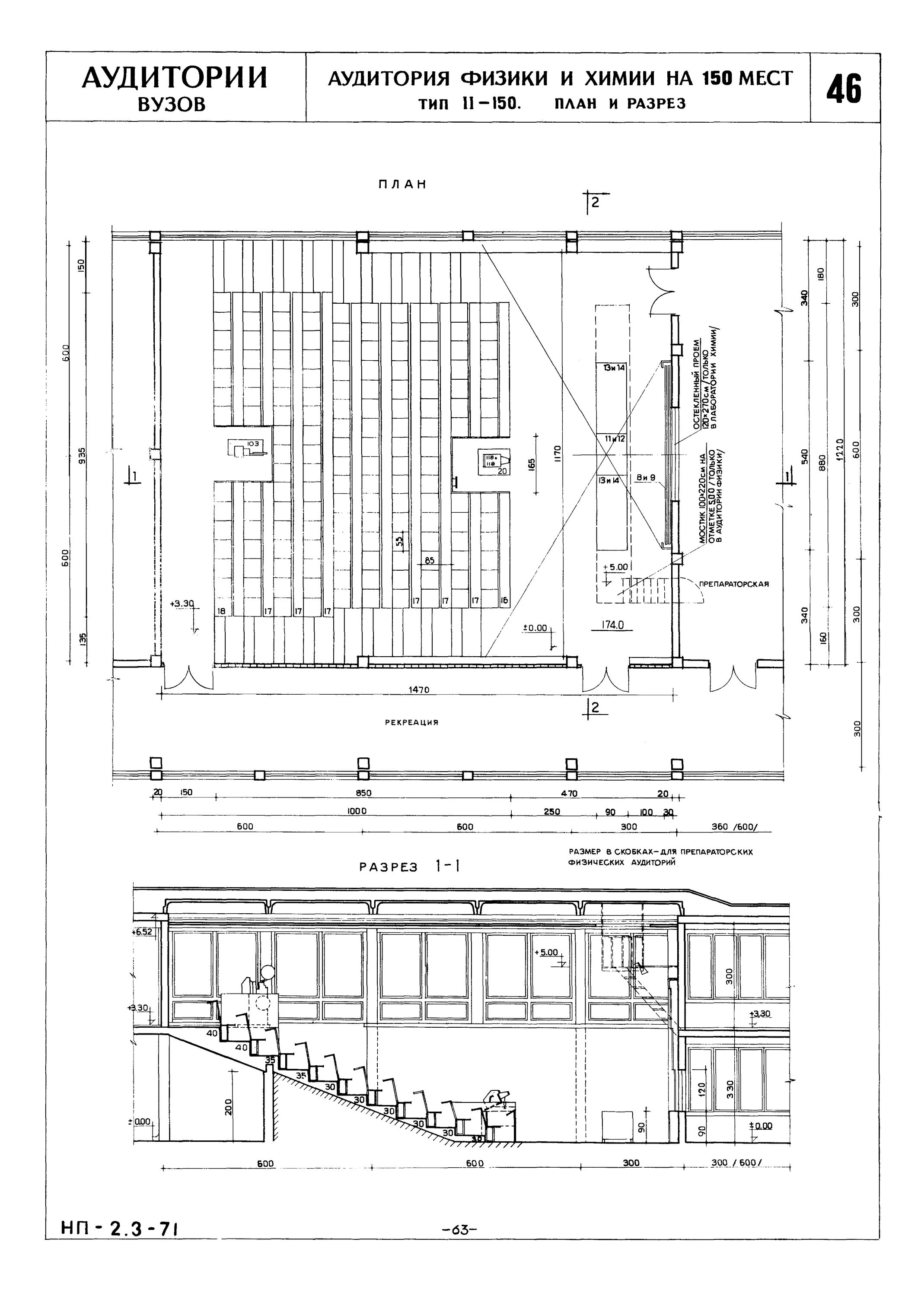
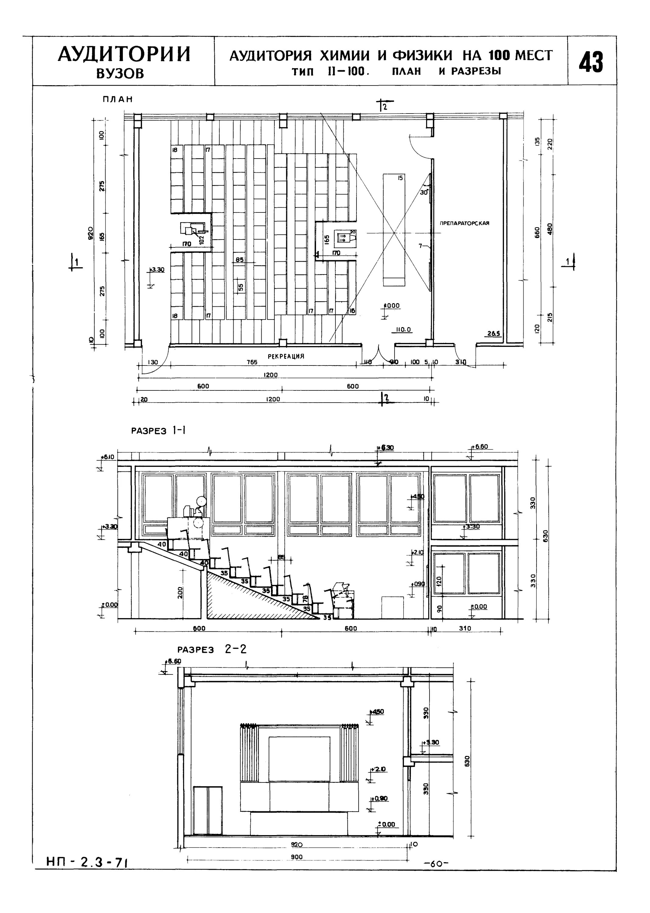
Площадь аудитории