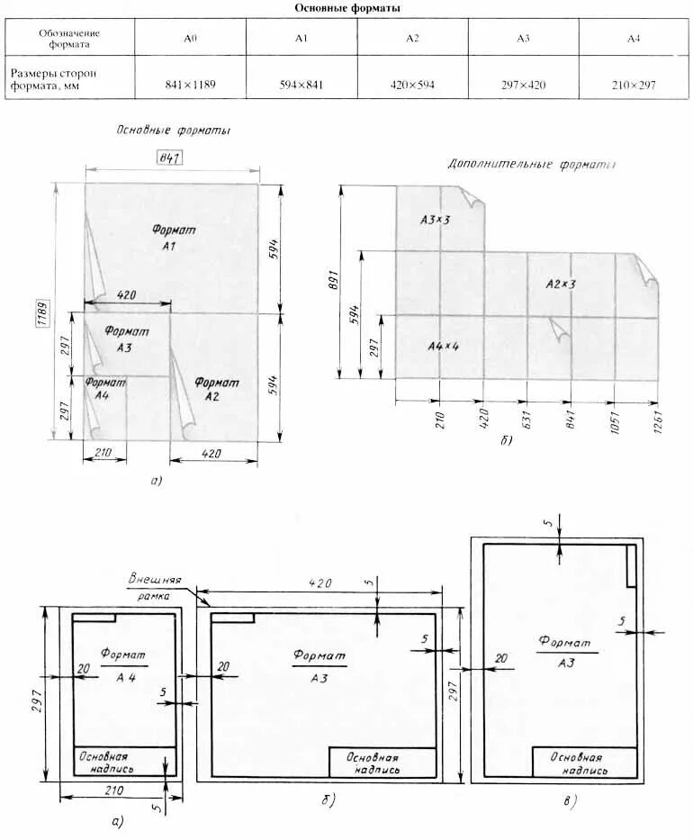
Площадь листа формата а4