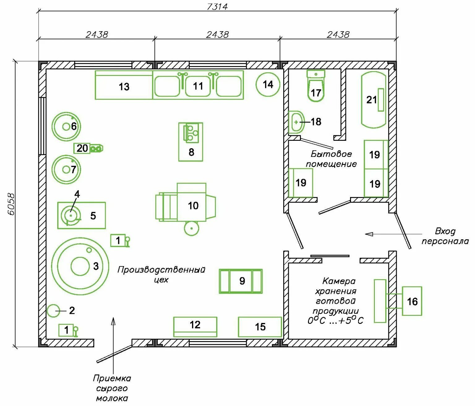
Площадь помещения для хранения