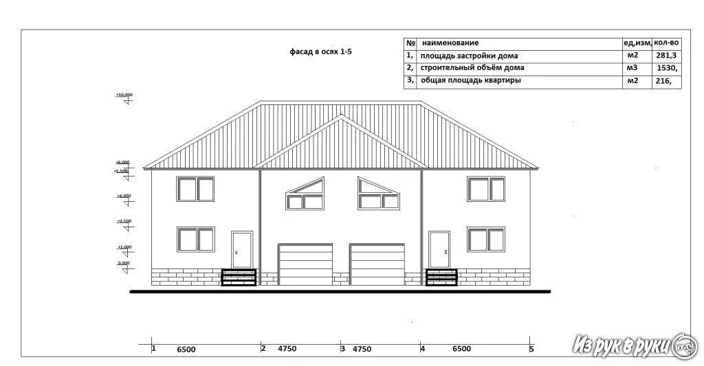
Площади и объемам дома