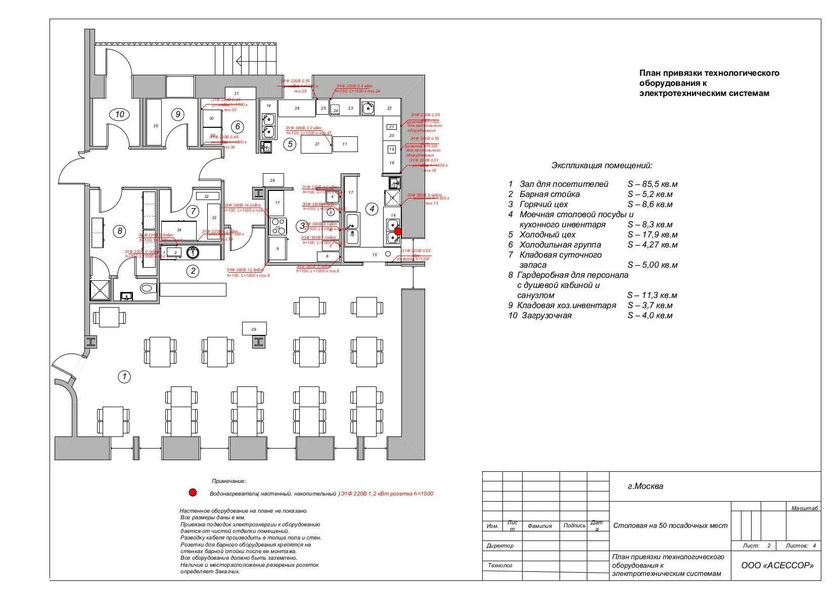
Площади помещений предприятий общественного питания