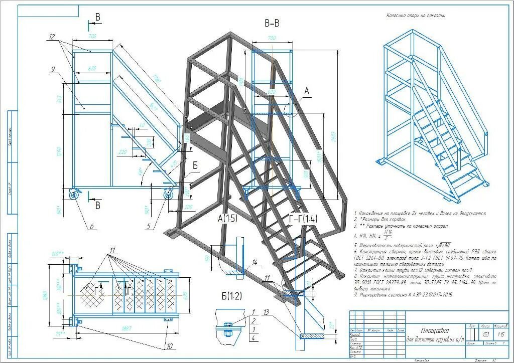
Площадка оператора