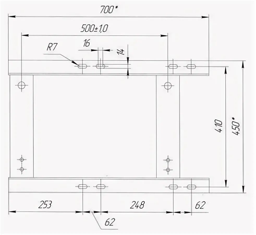
Под разъединитель