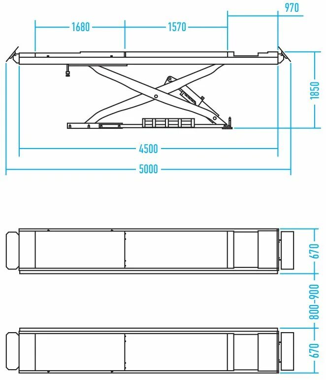
Подъемник по составу