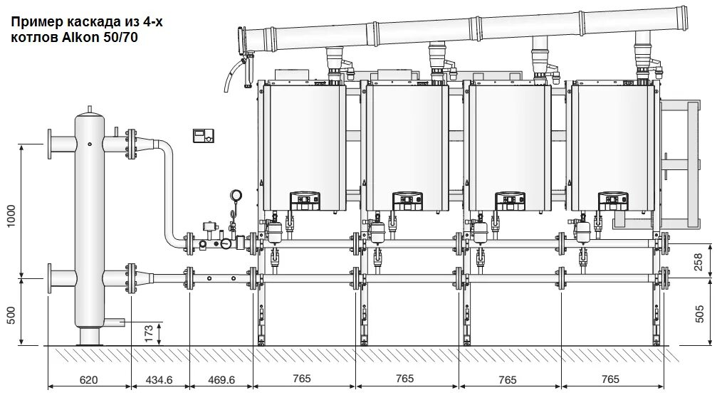
Подключение каскадом